CEO Pailler
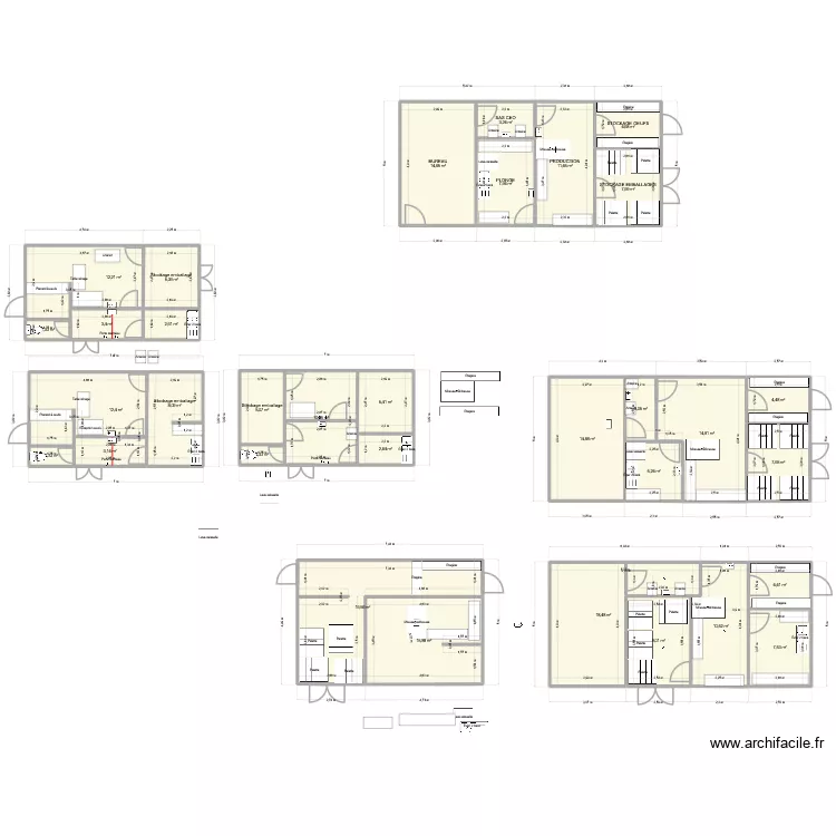
Plan de 33 et 260 m²

Détails du plan
- Plan commencé le 04/06/2023 à 22:09 par Lamarche Aurore
- Modifié le 16/04/2026 à 12:44 par Lamarche Aurore
- Partage : Utilisation
Mots clés
Liste des pièces
- STOCKAGE EMBALLAGES
- STOCKAGE OEUFS
- BUREAU
- PLONGE
- SAS CEO
- PRODUCTION
- Stockage emballage
- Stockage emballage
- Stockage emballage
Liste des objets
| Nom de l'objet | Nombre |
|---|---|
| Bar | 9 |
| Etagère redimenssionnable | 10 |
| Évier 2 bacs | 7 |
| Lave main | 16 |
| Mireuse-calibreuse | 5 |
| Palette | 16 |
| Plan de travail | 24 |
| Porte manteau | 6 |
| siphon | 3 |
| WC standard | 3 |
Lien vers ce plan
Lien pour partager le plan CEO Pailler
Image du plan
Copier et coller le code ci dessous
Partagez ce plan
Vous aimez ce plan ?
Cliquez sur J'aime et gagnez des fonctionnalités
Plans de 33 pièces
Voir tout les plans de 33 pièces
Plans de 250 à 270 m2
Voir tout les plans de 250 à 270 m2