salle répétition vers2
Plan de

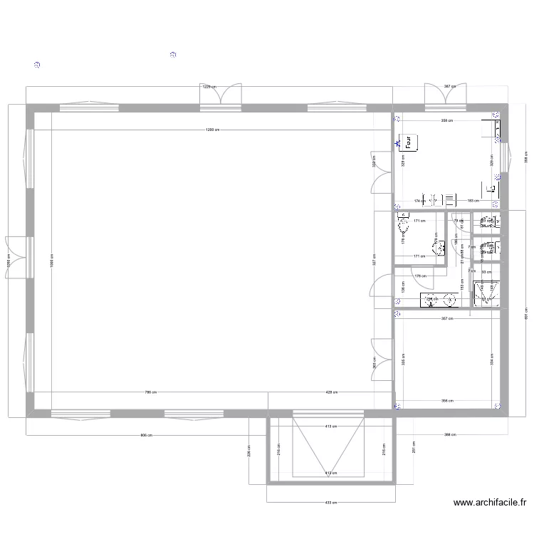
Détails du plan
- Plan commencé le 12/05/2023 à 17:55 par musicales
- Modifié le 13/05/2023 à 14:46 par musicales
- Partage : Lecture
Mots clés
Liste des pièces
Aucune pièce n'a été créé sur ce plan.
Liste des objets
| Nom de l'objet | Nombre |
|---|---|
| Congélateur armoire 200 L | 1 |
| Évier 2 bacs | 1 |
| Four | 1 |
| Lavabo | 1 |
| Lave vaisselle 12 couverts | 1 |
| Meuble 2 vasques | 1 |
| Prise | 12 |
| Prise 32 A | 1 |
| Receveur douche | 1 |
| WC standard | 3 |
Lien vers ce plan
Lien pour partager le plan salle répétition vers2
Image du plan
Copier et coller le code ci dessous
Partagez ce plan
Vous aimez ce plan ?
Cliquez sur J'aime et gagnez des fonctionnalités