Chambre-Avril
Plan de

Détails du plan
- Plan commencé le 23/04/2026 à 20:07 par pianoF
- Modifié le 23/04/2026 à 20:33 par pianoF
- Partage : Utilisation
Mots clés
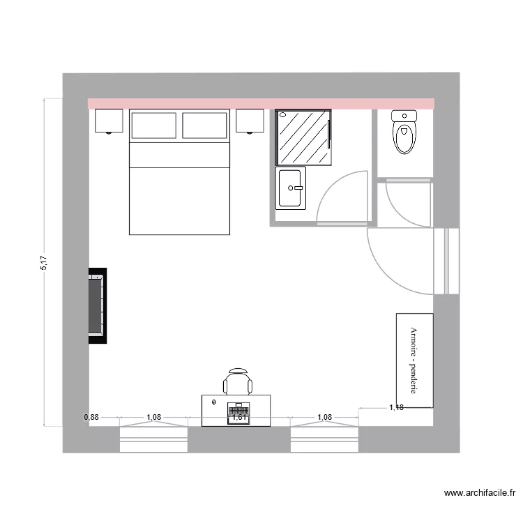
Liste des pièces
Aucune pièce n'a été créé sur ce plan.
Liste des objets
| Nom de l'objet | Nombre |
|---|---|
| Armoire - penderie 150 cm | 1 |
| Bureau 100 X 50 cm | 1 |
| Cabine douche | 1 |
| Cheminée | 1 |
| Lit queen size | 1 |
| Meuble 1 lavabo integré | 1 |
| Table de chevet | 2 |
| WC standard | 1 |
Lien vers ce plan
Lien pour partager le plan Chambre-Avril
Image du plan
Copier et coller le code ci dessous
Partagez ce plan
Vous aimez ce plan ?
Cliquez sur J'aime et gagnez des fonctionnalités