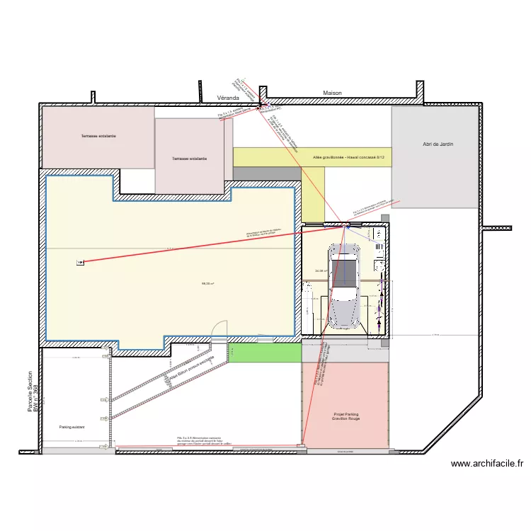
Plan d'électricité du garage
Plan de

Détails du plan
- Plan commencé le 19/06/2023 à 22:50 par chaptouz
- Modifié le 26/02/2025 à 15:48 par chaptouz
- Partage : Utilisation
Mots clés
Liste des pièces
Aucune pièce n'a été créé sur ce plan.
Liste des objets
| Nom de l'objet | Nombre |
|---|---|
| Texte | 29 |
| Armoire portes coulissantes | 1 |
| Boite de dérivation | 1 |
| Chauffe eau | 1 |
| Eclairage applique | 1 |
| Eclairage Tube à fluorescence double | 1 |
| Évier 1 bac avec meuble | 1 |
| Flêche | 5 |
| Interrupteur | 1 |
| Interrupteur va et vient | 2 |
| Prise | 1 |
| Rectangle | 217 |
| Réfrigérateur | 1 |
| Sèche linge | 1 |
| Tableau électrique Basse Tension | 2 |
| Velo ville | 2 |
| Voiture familiale ou berline | 1 |
Lien vers ce plan
Lien pour partager le plan Plan d'électricité du garage
Image du plan
Copier et coller le code ci dessous
Partagez ce plan
Vous aimez ce plan ?
Cliquez sur J'aime et gagnez des fonctionnalités