ASJ-Cuisine V3-19122025
Plan de 0 pièce et 0 m2.

Détails du plan
- Plan commencé le 19/12/2025 à 17:05 par VJ56
- Modifié le 19/12/2025 à 21:36 par VJ56
- Partage : Utilisation
Mots clés
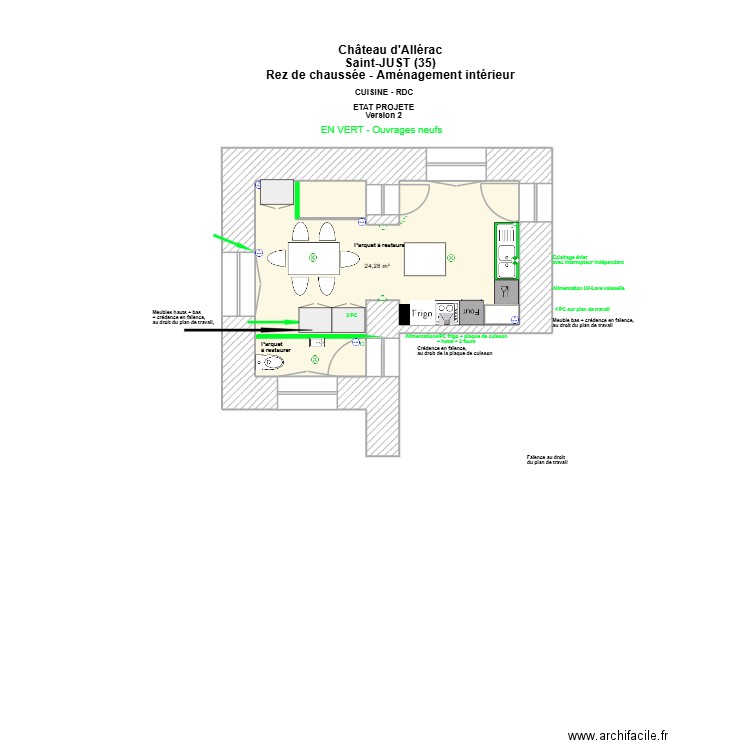
Liste des pièces
Liste des objets
| Nom de l'objet | Nombre |
|---|---|
| Texte | 15 |
| Eclairage applique | 2 |
| Eclairage plafond | 3 |
| Eclairage spot | 1 |
| Etagère redimenssionnable | 1 |
| Évier 2 bacs avec meuble | 1 |
| Flêche | 3 |
| Four | 1 |
| Hotte murale | 1 |
| Ilot central | 2 |
| Interrupteur | 1 |
| Interrupteur va et vient | 2 |
| Lave main | 1 |
| Lave vaisselle 12 couverts | 1 |
| Meuble cuisine haut 80 cm | 3 |
| Plaque électrique avec meuble | 1 |
| Prise | 5 |
| Prise sans terre | 2 |
| Réfrigérateur | 1 |
| Table 4 - 6 pers. 80 x 125 cm | 1 |
| WC standard | 1 |
Lien vers ce plan
Lien pour partager le plan ASJ-Cuisine V3-19122025
Image du plan
Copier et coller le code ci dessous
Partagez ce plan
Vous aimez ce plan ?
Cliquez sur J'aime et gagnez des fonctionnalités
Plans de 0 pièce et de 20 à 30 m2
Voir tout les plans de 0 pièce et de 20 à 30 m2
Plans de 0 pièce
Voir tout les plans de 0 pièce
Plans de 20 à 30 m2
Voir tout les plans de 20 à 30 m2