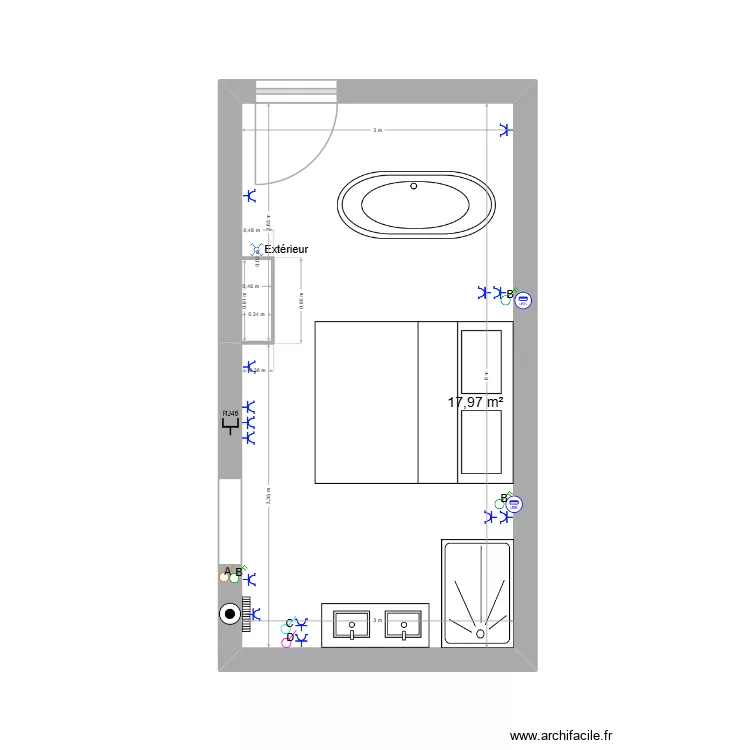
Chambre electricite
Plan de 1 pièce et 18 m²

Détails du plan
- Plan commencé le 03/03/2026 à 14:24 par AmandaPADO
- Modifié le 03/03/2026 à 21:52 par AmandaPADO
- Partage : Utilisation
Mots clés
Liste des pièces
Liste des objets
| Nom de l'objet | Nombre |
|---|---|
| Baignoire îlot ancienne | 1 |
| Boite de dérivation | 1 |
| Convecteur électrique | 1 |
| Interrupteur | 3 |
| Interrupteur bipolaire | 3 |
| Interrupteur double va et vient | 1 |
| Lit King Size | 1 |
| Meuble 2 lavabos | 1 |
| Prise | 14 |
| Prise RJ45 | 1 |
| Prise USB | 2 |
| Receveur douche | 1 |
Lien vers ce plan
Lien pour partager le plan Chambre electricite
Image du plan
Copier et coller le code ci dessous
Partagez ce plan
Vous aimez ce plan ?
Cliquez sur J'aime et gagnez des fonctionnalités
Plans de 1 pièce et de 15 à 25 m2
Voir tout les plans de 1 pièce et de 15 à 25 m2
Plans de 1 pièce
Voir tout les plans de 1 pièce
Plans de 15 à 25 m2
MAIRIE DE MOUSSY LE NEUF : REFECTOIRE ELEMENTAIRE DU CENTRE DE LOISIRS LA RIBAMBELLE
par ThomasPages
Voir tout les plans de 15 à 25 m2