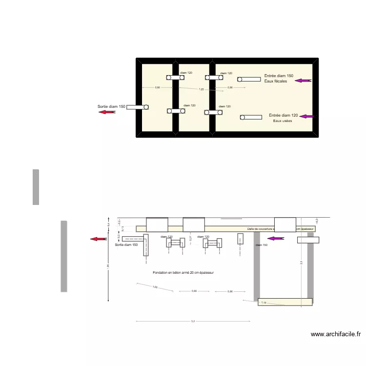
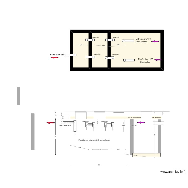
Fosse septique Lagunage
Plan de

Description
fosse septique
Détails du plan
- Plan commencé le 21/07/2025 à 12:17 par mougoumi
- Modifié le 21/07/2025 à 12:17 par mougoumi
- Partage : Utilisation
Mots clés
Liste des pièces
Aucune pièce n'a été créé sur ce plan.
Lien vers ce plan
Lien pour partager le plan Fosse septique Lagunage
Image du plan
Copier et coller le code ci dessous
Partagez ce plan
Vous aimez ce plan ?
Cliquez sur J'aime et gagnez des fonctionnalités