PV 0
Plan de 4 et 71 m²

Description
rdc
Détails du plan
- Plan commencé le 07/02/2026 à 19:10 par Eric102
- Modifié le 08/02/2026 à 10:35 par Eric102
- Partage : Lecture
Mots clés
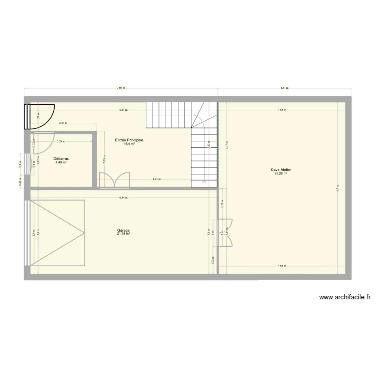
Liste des pièces
- Débarras
- Entrée Principale
- Garage
- Cave Atelier
Liste des objets
| Nom de l'objet | Nombre |
|---|---|
| Escalier quart tournant | 1 |
Lien vers ce plan
Lien pour partager le plan PV 0
Image du plan
Copier et coller le code ci dessous
Partagez ce plan
Vous aimez ce plan ?
Cliquez sur J'aime et gagnez des fonctionnalités
Plans de 4 pièces et de 60 à 80 m2
Voir tout les plans de 4 pièces et de 60 à 80 m2
Plans de 4 pièces
Voir tout les plans de 4 pièces
Plans de 60 à 80 m2
Voir tout les plans de 60 à 80 m2