Plan pharmacie Entière 22
Plan de

Description
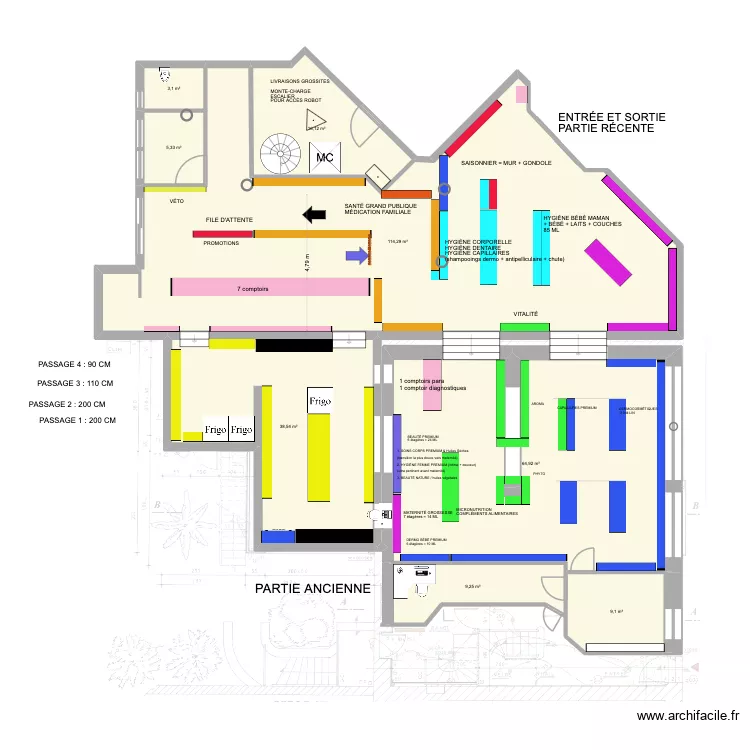
Comptoirs dans la zone récente, zone de flux. Dermo dans la zone ancienne avec phyto, aroma, micronutrition...
Détails du plan
- Plan commencé le 04/12/2025 à 21:16 par AugusteBliard
- Modifié le 06/12/2025 à 14:11 par AugusteBliard
- Partage : Utilisation
Mots clés
Liste des pièces
Aucune pièce n'a été créé sur ce plan.
Liste des objets
| Nom de l'objet | Nombre |
|---|---|
| Texte | 26 |
| Armoire portes battantes | 1 |
| Barrière de jardin | 1 |
| Borne carrée point | 1 |
| Borne triangle point | 1 |
| Bureau 100 X 50 cm | 1 |
| Bureau 180 X 140 cm | 1 |
| Climatiseur Split interieur | 1 |
| Escalier colimaçon | 1 |
| Escalier droit | 4 |
| Etagère redimenssionnable | 22 |
| Flêche | 2 |
| Monte-charge | 1 |
| Poteau métal | 5 |
| Réfrigérateur | 3 |
| Table de bureau | 35 |
| WC suspendu | 1 |
Lien vers ce plan
Lien pour partager le plan Plan pharmacie Entière 22
Image du plan
Copier et coller le code ci dessous
Partagez ce plan
Vous aimez ce plan ?
Cliquez sur J'aime et gagnez des fonctionnalités