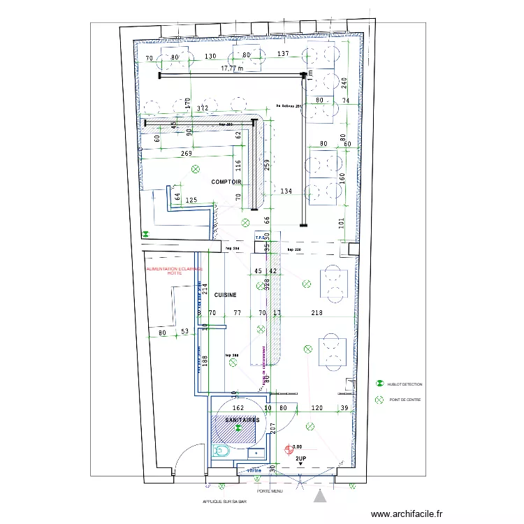
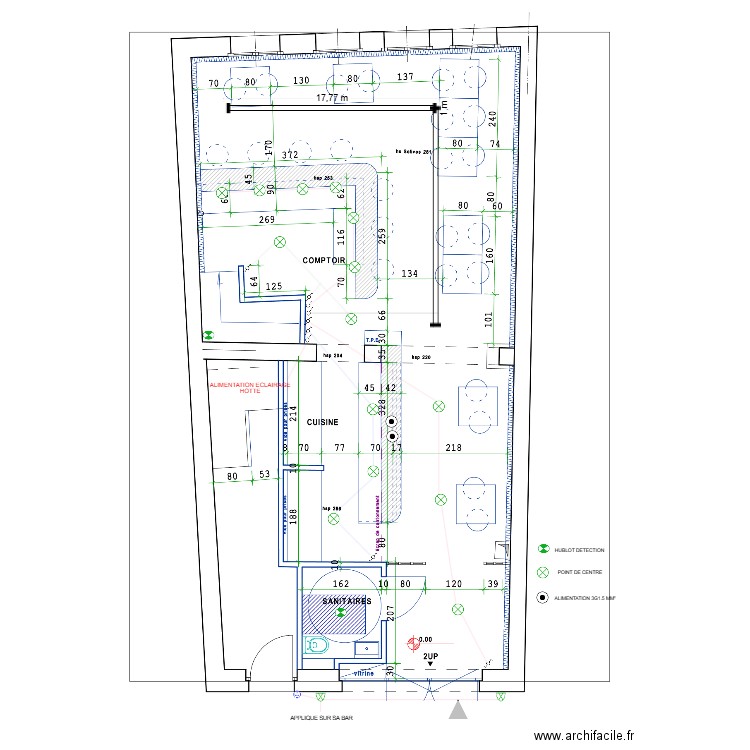
MAINE RECL RDC
Plan de

Détails du plan
- Plan commencé le 04/10/2025 à 10:51 par cedr80
- Modifié le 09/10/2025 à 07:50 par cedr80
- Partage : Utilisation
Mots clés
Liste des pièces
Aucune pièce n'a été créé sur ce plan.
Liste des objets
| Nom de l'objet | Nombre |
|---|---|
| Texte | 5 |
| Eclairage applique | 3 |
| Eclairage plafond | 9 |
| Eclairage spot | 3 |
| Eclairage Tube à fluorescence double | 4 |
| Interrupteur | 4 |
| Interrupteur va et vient | 6 |
| Prise | 1 |
Lien vers ce plan
Lien pour partager le plan MAINE RECL RDC
Image du plan
Copier et coller le code ci dessous
Partagez ce plan
Vous aimez ce plan ?
Cliquez sur J'aime et gagnez des fonctionnalités