RDC LHABIB
Plan de

Détails du plan
- Plan commencé le 28/07/2025 à 01:06 par Alex161194
- Modifié le 28/07/2025 à 01:06 par Alex161194
- Partage : Utilisation
Mots clés
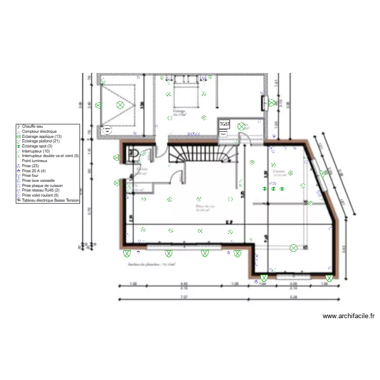
Liste des pièces
Aucune pièce n'a été créé sur ce plan.
Liste des objets
| Nom de l'objet | Nombre |
|---|---|
| Légende | 1 |
| Chauffe eau | 1 |
| Compteur électrique | 1 |
| Eclairage plafond | 21 |
| Eclairage spot | 3 |
| Interrupteur | 8 |
| Interrupteur double va et vient | 5 |
| Point lumineux | 1 |
| Prise | 19 |
| Prise four | 1 |
| Prise lave vaisselle | 1 |
| Prise plaque de cuisson | 1 |
| Prise réseau RJ45 | 2 |
| Prise volet roulant | 5 |
| Tableau électrique Basse Tension | 1 |
Lien vers ce plan
Lien pour partager le plan RDC LHABIB
Image du plan
Copier et coller le code ci dessous
Partagez ce plan
Vous aimez ce plan ?
Cliquez sur J'aime et gagnez des fonctionnalités