MAISON MAI 2025
Plan de

Détails du plan
- Plan commencé le 19/05/2025 à 09:45 par tugabond
- Modifié le 02/06/2025 à 16:53 par tugabond
- Partage : Utilisation
Mots clés
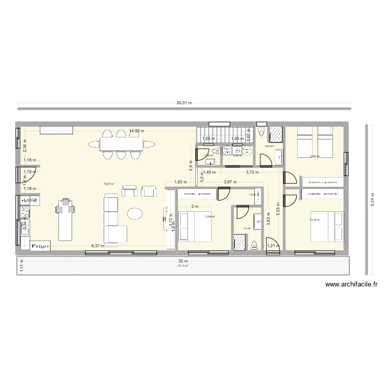
Liste des pièces
Aucune pièce n'a été créé sur ce plan.
Liste des objets
| Nom de l'objet | Nombre |
|---|---|
| Armoire - penderie 150 cm | 4 |
| Buffet | 2 |
| Cabine douche | 2 |
| Canapé méridienne gauche | 1 |
| Chaise haute bar | 3 |
| Chauffe eau | 1 |
| Escalier droit | 1 |
| Évier 1 bac avec meuble | 1 |
| Fauteuil 1 place | 2 |
| Four | 1 |
| Lave linge hublot | 1 |
| Lave vaisselle 9 couverts | 1 |
| Lit 1 pers | 2 |
| Lit King Size | 2 |
| Meuble 1 lavabo integré | 3 |
| Plan de travail | 2 |
| Plaque électrique | 1 |
| Réfrigérateur | 1 |
| Sèche linge | 1 |
| Table 6 - 8 pers 180 x 80 cm | 1 |
| Table basse | 1 |
| Téléviseur | 1 |
| WC suspendu | 3 |
Lien vers ce plan
Lien pour partager le plan MAISON MAI 2025
Image du plan
Copier et coller le code ci dessous
Partagez ce plan
Vous aimez ce plan ?
Cliquez sur J'aime et gagnez des fonctionnalités