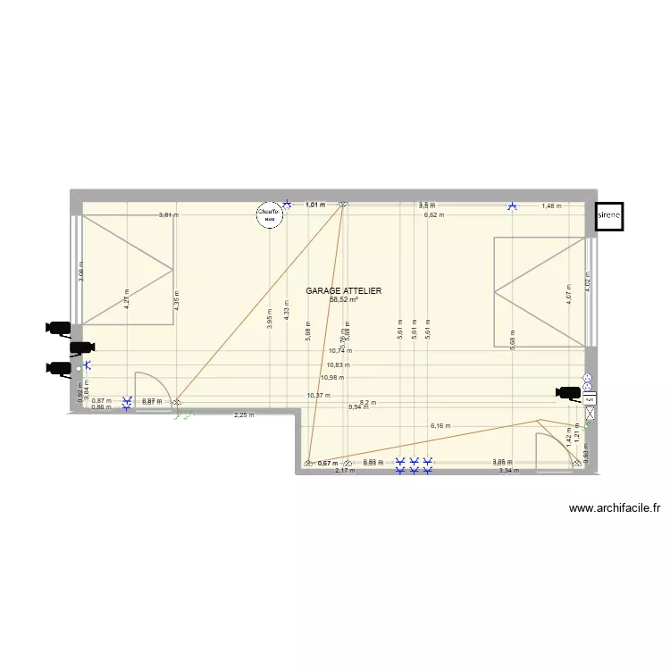
MAISON CREHANGE
Plan de 1 et 59 m²

Description
RENOVATION ELECTRIQUE
Détails du plan
- Plan commencé le 31/03/2026 à 09:49 par Dépannelecgilles
- Modifié le 31/03/2026 à 17:05 par Dépannelecgilles
- Partage : Utilisation
Mots clés
Liste des pièces
- Garage ATTELIER
Liste des objets
| Nom de l'objet | Nombre |
|---|---|
| Caméra de surveillance | 4 |
| Chauffe eau | 1 |
| Compteur électrique | 1 |
| Eclairage applique | 5 |
| Interrupteur | 1 |
| Interrupteur va et vient | 3 |
| Prise | 10 |
| Prise | 2 |
| Prise 20 A | 1 |
| Tableau électrique | 1 |
Lien vers ce plan
Lien pour partager le plan MAISON CREHANGE
Image du plan
Copier et coller le code ci dessous
Partagez ce plan
Vous aimez ce plan ?
Cliquez sur J'aime et gagnez des fonctionnalités
Plans de 1 pièce et de 55 à 65 m2
Voir tout les plans de 1 pièce et de 55 à 65 m2
Plans de 1 pièce
Voir tout les plans de 1 pièce
Plans de 55 à 65 m2
Voir tout les plans de 55 à 65 m2