maison Maroc
Plan de

Détails du plan
- Plan commencé le 22/05/2025 à 16:42 par vanillevi
- Modifié le 23/05/2025 à 10:32 par vanillevi
- Partage : Utilisation
Mots clés
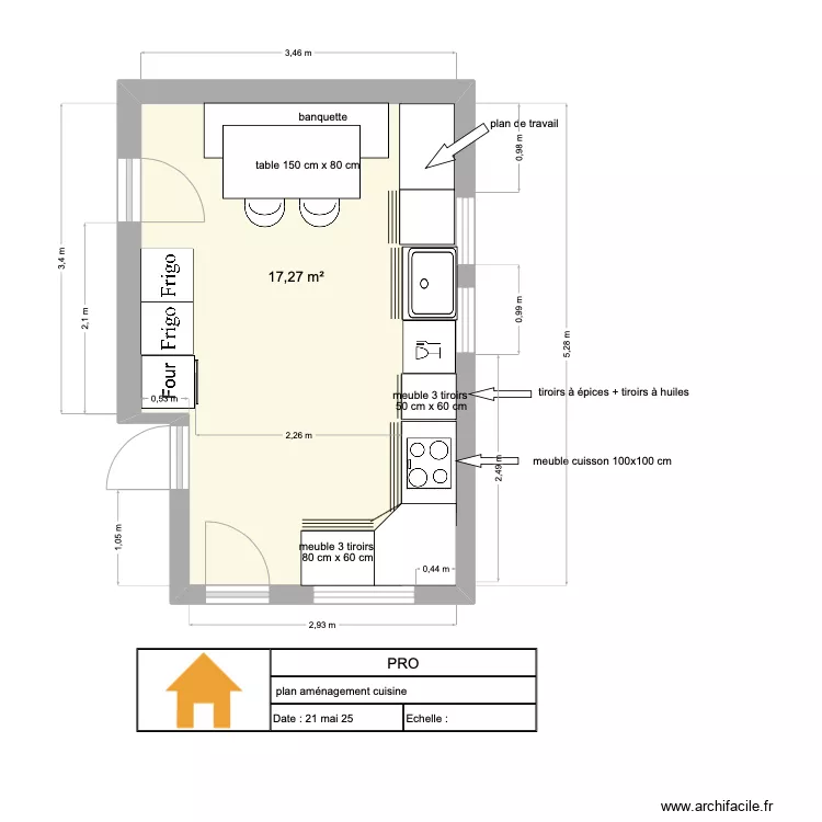
Liste des pièces
Aucune pièce n'a été créé sur ce plan.
Liste des objets
| Nom de l'objet | Nombre |
|---|---|
| Texte | 7 |
| Cartouche 1 | 1 |
| Chaise | 2 |
| Evier 1 vasque | 1 |
| Flêche | 3 |
| Four | 1 |
| Ilot central | 1 |
| Lave vaisselle 12 couverts | 1 |
| Meuble cuisine 15 cm | 1 |
| Meuble cuisine 3 tiroirs | 4 |
| Meuble cuisine coin bas | 1 |
| Plan de travail | 2 |
| Plaque induction 4 foyers | 1 |
| Réfrigérateur | 2 |
Lien vers ce plan
Lien pour partager le plan maison Maroc
Image du plan
Copier et coller le code ci dessous
Partagez ce plan
Vous aimez ce plan ?
Cliquez sur J'aime et gagnez des fonctionnalités