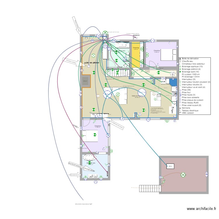
art'yss cenon V2.2 pieuvre secondaire
Plan de

Description
PLAN implentation VERSION 2.1
Cheminement pieuvre
PAC+ VR+velux +internet + RJ45
Détails du plan
- Plan commencé le 09/10/2025 à 06:32 par reseauxconnect
- Modifié le 09/10/2025 à 06:42 par reseauxconnect
- Partage : Utilisation
Mots clés
Liste des pièces
Aucune pièce n'a été créé sur ce plan.
Liste des objets
Lien vers ce plan
Lien pour partager le plan art'yss cenon V2.2 pieuvre secondaire
Image du plan
Copier et coller le code ci dessous
Partagez ce plan
Vous aimez ce plan ?
Cliquez sur J'aime et gagnez des fonctionnalités