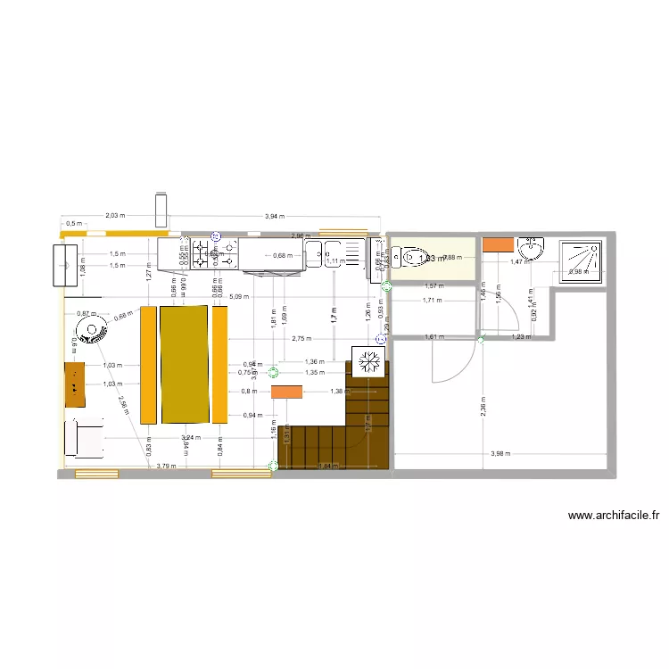
Longères 5 cuisine séjour = chambre Est- cotations fenêtre et poele ok
Plan de

Description
Aménagement de la pièce de la pièce principale de la Longère
Détails du plan
- Plan commencé le 07/05/2025 à 18:54 par AnneBillot
- Modifié le 07/05/2025 à 21:19 par AnneBillot
- Partage : Modification
Mots clés
Liste des pièces
Aucune pièce n'a été créé sur ce plan.
Liste des objets
Lien vers ce plan
Lien pour partager le plan Longères 5 cuisine séjour = chambre Est- cotations fenêtre et poele ok
Image du plan
Copier et coller le code ci dessous
Partagez ce plan
Vous aimez ce plan ?
Cliquez sur J'aime et gagnez des fonctionnalités