SESAME AUTISME GRENOBLE
Plan de

Description
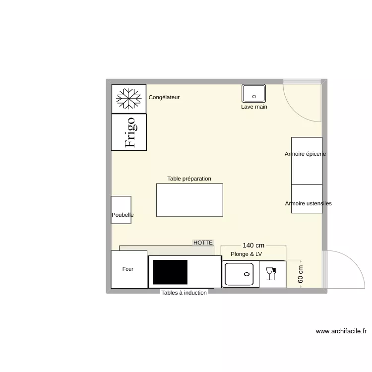
Cuisine pour colocation 300 m² / 8 chambres / 12 résidents
Détails du plan
- Plan commencé le 30/04/2025 à 19:44 par Maison Patay
- Modifié le 30/04/2025 à 20:05 par Maison Patay
- Partage : Utilisation
Mots clés
Liste des pièces
Aucune pièce n'a été créé sur ce plan.
Liste des objets
| Nom de l'objet | Nombre |
|---|---|
| Bar | 6 |
| Évier 1 bac | 1 |
| Evier 1 vasque | 1 |
| Lave vaisselle 12 couverts | 1 |
| Rectangle | 1 |
| Réfrigérateur | 1 |
| Réfrigérateur | 1 |
| Table induction pédagogique | 1 |
Lien vers ce plan
Lien pour partager le plan SESAME AUTISME GRENOBLE
Image du plan
Copier et coller le code ci dessous
Partagez ce plan
Vous aimez ce plan ?
Cliquez sur J'aime et gagnez des fonctionnalités