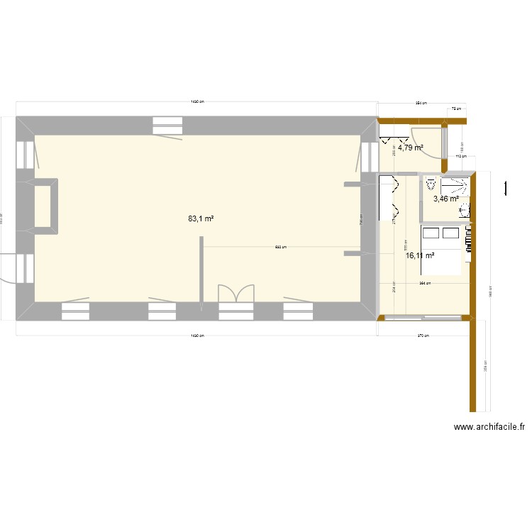
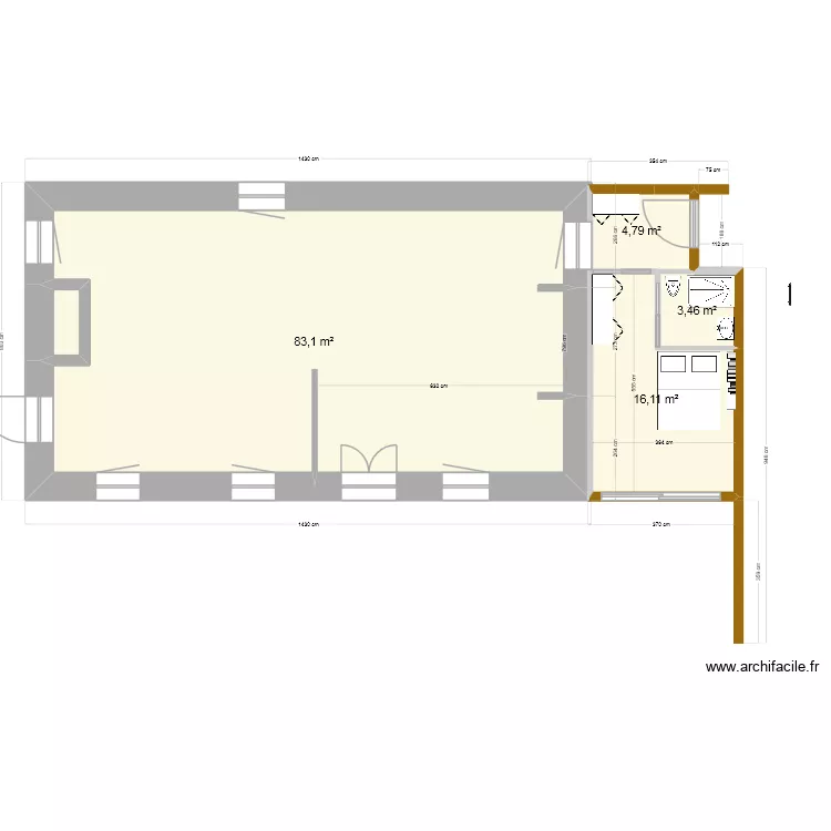
guzoux v4 -20m²
Plan de 0 pièce et 0 m2.

Détails du plan
- Plan commencé le 21/09/2025 à 00:13 par Sancy Renovation
- Modifié le 21/09/2025 à 00:59 par Sancy Renovation
- Partage : Utilisation
Mots clés
Liste des pièces
Aucune pièce n'a été créé sur ce plan.
Liste des objets
| Nom de l'objet | Nombre |
|---|---|
| Armoire portes pliantes | 2 |
| Bibliothèque | 1 |
| Lit King Size | 1 |
| Meuble lavabo intégré | 1 |
| Receveur douche | 1 |
| Sèche-serviettes électrique à inertie 1000 W | 1 |
| WC suspendu | 1 |
Lien vers ce plan
Lien pour partager le plan guzoux v4 -20m²
Image du plan
Copier et coller le code ci dessous
Partagez ce plan
Vous aimez ce plan ?
Cliquez sur J'aime et gagnez des fonctionnalités