L'AS DE LA COUPE AVANT TRAVAUX
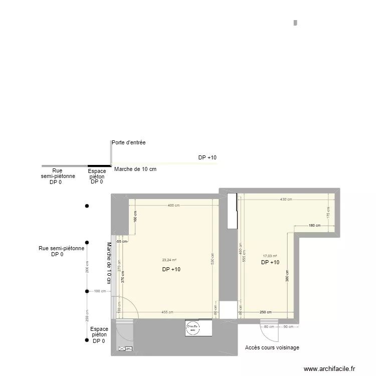
Plan de

Détails du plan
- Plan commencé le 05/12/2023 à 10:40 par ERPexpertise2
- Modifié le 05/12/2023 à 11:31 par ERPexpertise2
- Partage : Utilisation
Mots clés
Liste des pièces
Aucune pièce n'a été créé sur ce plan.
Liste des objets
| Nom de l'objet | Nombre |
|---|---|
| Texte | 15 |
| Armoire portes coulissantes | 2 |
| Cercle | 4 |
| Chauffe eau | 1 |
| Tableau électrique | 1 |
| Tableau électrique Basse Tension | 1 |
Lien vers ce plan
Lien pour partager le plan L'AS DE LA COUPE AVANT TRAVAUX
Image du plan
Copier et coller le code ci dessous
Partagez ce plan
Vous aimez ce plan ?
Cliquez sur J'aime et gagnez des fonctionnalités