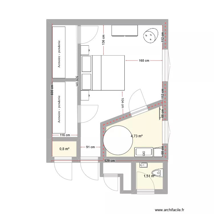
chambre V3
Plan de

Description
plan chambre parentale V2
Détails du plan
- Plan commencé le 24/03/2024 à 22:14 par olkiera
- Modifié le 24/03/2024 à 22:14 par olkiera
- Partage : Utilisation
Mots clés
Liste des pièces
Aucune pièce n'a été créé sur ce plan.
Liste des objets
| Nom de l'objet | Nombre |
|---|---|
| Armoire - penderie 200 cm | 2 |
| Cercle | 1 |
| Commode tiroirs 120 x 50 cm | 1 |
| Fauteuil crapaud | 1 |
| Lave main | 1 |
| Lit queen size | 1 |
| Meuble 1 lavabo integré | 1 |
| Meuble colonne | 1 |
| Sèche-serviettes électrique à inertie 1000 W | 1 |
| Table de chevet | 2 |
| WC suspendu | 1 |
Lien vers ce plan
Lien pour partager le plan chambre V3
Image du plan
Copier et coller le code ci dessous
Partagez ce plan
Vous aimez ce plan ?
Cliquez sur J'aime et gagnez des fonctionnalités