Relocalisation BGE - 3
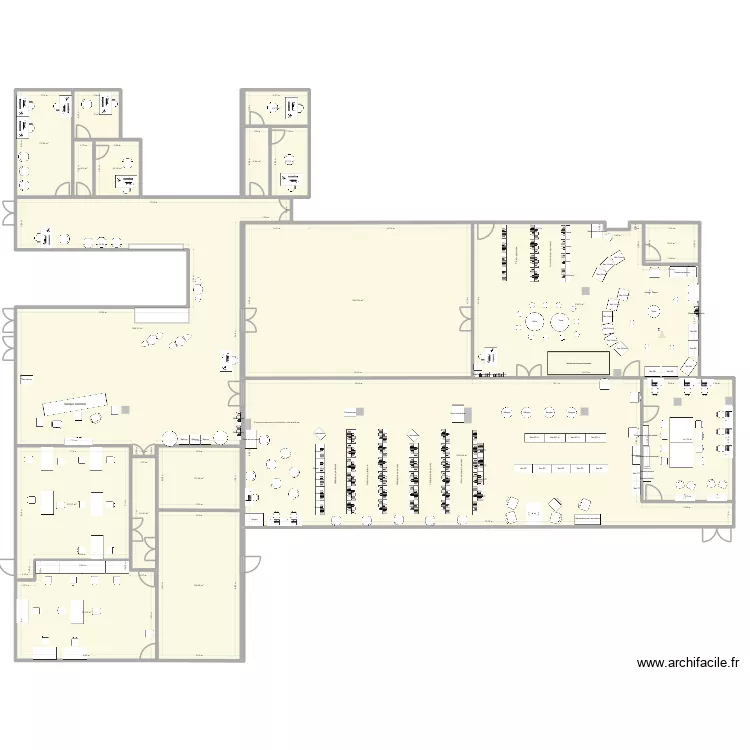
Plan de 18 et 1019 m²

Détails du plan
- Plan commencé le 03/12/2025 à 14:08 par Jacques CBL
- Modifié le 08/12/2025 à 14:32 par Jacques CBL
- Partage : Utilisation
Mots clés
Liste des pièces
Liste des objets
| Nom de l'objet | Nombre |
|---|---|
| Texte | 8 |
| Armoire portes battantes | 1 |
| Bar | 2 |
| Bibliothèque | 82 |
| Bureau 100 X 50 cm | 9 |
| Bureau rectangulaire 140 X 80 cm | 10 |
| Caisson à tiroir | 10 |
| Canapé 2 places | 1 |
| Chaise | 5 |
| Chaise | 35 |
| Chaise | 41 |
| Chaise de bureau | 2 |
| Etagère redimenssionnable | 45 |
| Fauteuil 1 place | 1 |
| Poteau béton | 9 |
| Table basse | 9 |
| Table de bureau | 19 |
| Table ronde 2 pers. 60 x 60 cm | 3 |
| Téléviseur avec meuble | 4 |
| Videoprojecteur | 1 |
Lien vers ce plan
Lien pour partager le plan Relocalisation BGE - 3
Image du plan
Copier et coller le code ci dessous
Partagez ce plan
Vous aimez ce plan ?
Cliquez sur J'aime et gagnez des fonctionnalités
Plans de 18 pièces
Voir tout les plans de 18 pièces
Plans de 1010 à 1030 m2
Voir tout les plans de 1010 à 1030 m2