Corse Studio
Plan de 3 pièces et 53 m²

Description
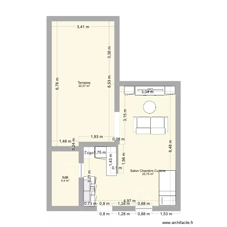
Appartement en rénovation de type studio, 30 m² plus 20 m² de terrasse en Corse
Détails du plan
- Plan commencé le 01/03/2026 à 09:49 par Noemieeblc
- Modifié le 02/03/2026 à 11:35 par Noemieeblc
- Partage : Utilisation
Mots clés
Liste des pièces
Liste des objets
| Nom de l'objet | Nombre |
|---|---|
| Buffet | 1 |
| Canapé 2 places | 1 |
| Lit 1 pers | 1 |
| Meuble colonne | 2 |
| Meuble cuisine 1 porte | 3 |
| Meuble cuisine 1 porte et 1 tiroir | 1 |
| Meuble cuisine haut 60cm | 2 |
| Plan de travail | 1 |
| Plaque électrique 2 foyers | 1 |
| Réfrigérateur | 1 |
| Table basse | 1 |
| Téléviseur | 1 |
Lien vers ce plan
Lien pour partager le plan Corse Studio
Image du plan
Copier et coller le code ci dessous
Partagez ce plan
Vous aimez ce plan ?
Cliquez sur J'aime et gagnez des fonctionnalités
Plans de 3 pièces et de 50 à 60 m2
Voir tout les plans de 3 pièces et de 50 à 60 m2
Plans de 3 pièces
Voir tout les plans de 3 pièces
Plans de 50 à 60 m2
Voir tout les plans de 50 à 60 m2