
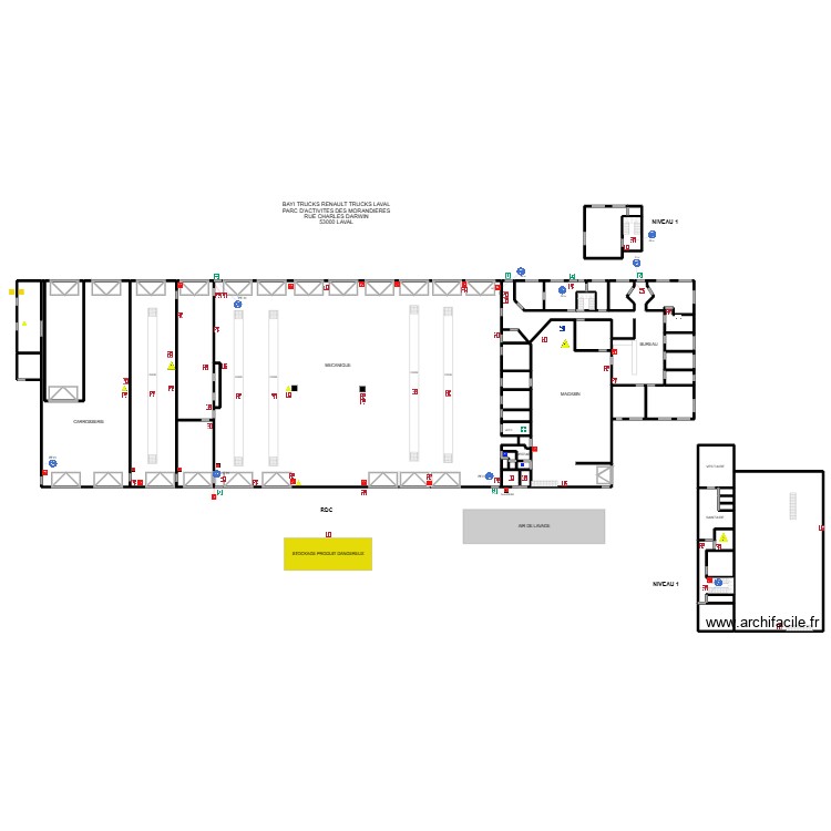
| Nom de l'objet | Nombre |
|---|---|
| Texte | 27 |
| Alarme incendie | 11 |
| ARMOIRE ELECTRIQUE | 7 |
| ARRET D'URGENCE | 4 |
| AU ELEC | 1 |
| Bar | 2 |
| coupure vanne gaz | 2 |
| DESENFUMAGE | 15 |
| Escalier demi tournant | 3 |
| Escalier droit | 13 |
| Extincteur | 46 |
| Premiers secours | 1 |
| Rectangle | 9 |
| SERVEUR | 1 |
| Sortie et issue de secours | 6 |
| Toilette mixte | 1 |
| Vous êtes ici | 9 |
| WC | 2 |
Lien pour partager le plan BAYI TRUCKS LAVAL
Copier et coller le code ci dessous
Cliquez sur J'aime et gagnez des fonctionnalités
Voir tout les plans de 0 pièce