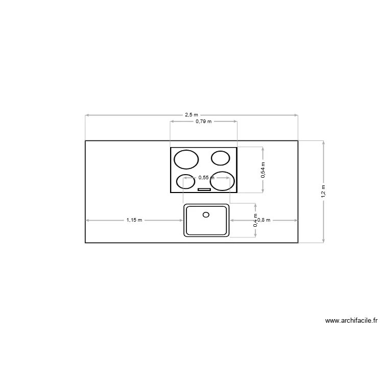
ILOT
Plan de

Détails du plan
- Plan commencé le 15/02/2026 à 17:34 par oliviera06
- Modifié le 15/02/2026 à 17:34 par oliviera06
- Partage : Utilisation
Mots clés
Liste des pièces
Aucune pièce n'a été créé sur ce plan.
Liste des objets
| Nom de l'objet | Nombre |
|---|---|
| Evier 1 vasque | 1 |
| Ilot central | 1 |
| Plaque induction 4 foyers | 1 |
Lien vers ce plan
Lien pour partager le plan ILOT
Image du plan
Copier et coller le code ci dessous
Partagez ce plan
Vous aimez ce plan ?
Cliquez sur J'aime et gagnez des fonctionnalités