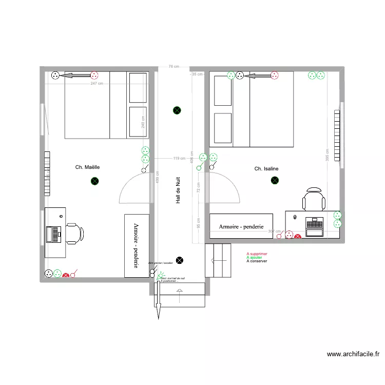
Hall de Nuit et Chambres Filles - Elec 08.11
Plan de

Détails du plan
- Plan commencé le 08/11/2023 à 12:57 par VincentGodard
- Modifié le 11/11/2023 à 11:34 par VincentGodard
- Partage : Utilisation
Mots clés
Liste des pièces
Aucune pièce n'a été créé sur ce plan.
Liste des objets
| Nom de l'objet | Nombre |
|---|---|
| Texte | 8 |
| Armoire - penderie 150 cm | 2 |
| Bureau 100 X 50 cm | 2 |
| Détecteur de mouvement | 1 |
| Eclairage applique | 2 |
| Eclairage plafond | 4 |
| Escalier droit | 2 |
| Flêche | 3 |
| Interrupteur | 7 |
| Lit King Size | 1 |
| Lit queen size | 1 |
| Prise | 16 |
| Radiateur à inertie 2500W | 2 |
Lien vers ce plan
Lien pour partager le plan Hall de Nuit et Chambres Filles - Elec 08.11
Image du plan
Copier et coller le code ci dessous
Partagez ce plan
Vous aimez ce plan ?
Cliquez sur J'aime et gagnez des fonctionnalités