KNAUF
Plan de

Détails du plan
- Plan commencé le 10/12/2024 à 07:45 par MEP22
- Modifié le 19/12/2024 à 20:43 par MEP22
- Partage : Utilisation
Mots clés
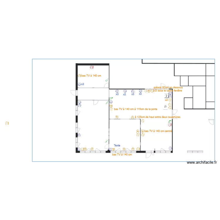
Liste des pièces
Aucune pièce n'a été créé sur ce plan.
Liste des objets
| Nom de l'objet | Nombre |
|---|---|
| Texte | 14 |
| Interrupteur | 1 |
| Interrupteur va et vient | 2 |
| Interrupteur variateur | 2 |
| Lave vaisselle 12 couverts | 1 |
| Prise | 18 |
| Prise haute | 11 |
| Prise TV | 3 |
| Prise USB | 8 |
| Refrigerateur americain | 1 |
Lien vers ce plan
Lien pour partager le plan KNAUF
Image du plan
Copier et coller le code ci dessous
Partagez ce plan
Vous aimez ce plan ?
Cliquez sur J'aime et gagnez des fonctionnalités