Perenchies RDC meublé + elec2
Plan de

Détails du plan
- Plan commencé le 13/02/2025 à 15:09 par etsandredaret.free.fr
- Modifié le 13/02/2025 à 16:07 par etsandredaret.free.fr
- Partage : Utilisation
Mots clés
Liste des pièces
Aucune pièce n'a été créé sur ce plan.
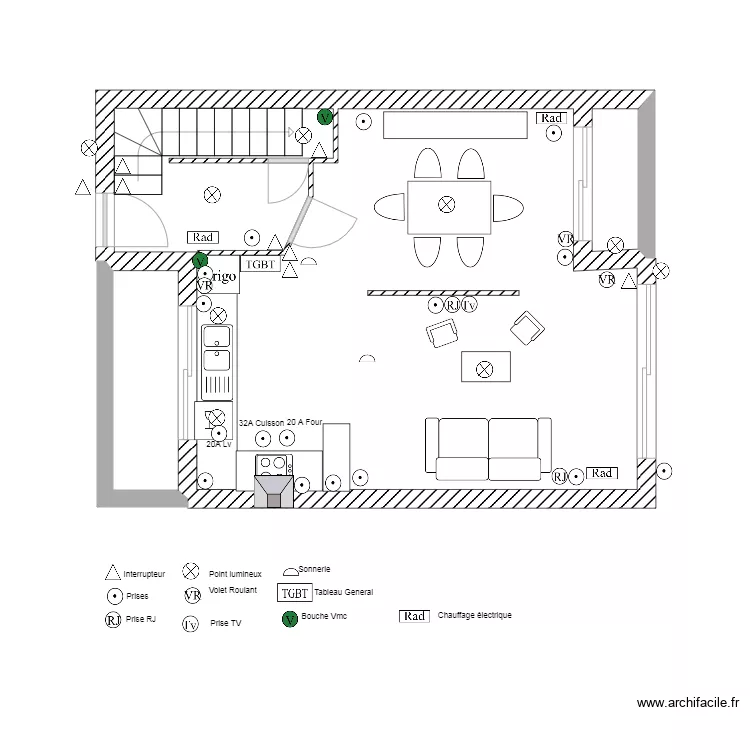
Liste des objets
| Nom de l'objet | Nombre |
|---|---|
| Texte | 13 |
| Bouche VMC | 3 |
| Canapé 2 places | 1 |
| Chaise haute bar | 2 |
| Chauffage | 4 |
| Escalier quart tournant | 1 |
| Évier 2 bacs | 1 |
| Hotte murale | 1 |
| interrupteur | 9 |
| Lave vaisselle 12 couverts | 1 |
| Meuble cuisine 3 tiroirs | 4 |
| Plaque électrique | 1 |
| Point lumineux | 10 |
| Prise | 17 |
| Prise RJ | 3 |
| Prise TV | 2 |
| Réfrigérateur | 1 |
| sonnerie | 3 |
| Table 4 - 6 pers. 80 x 125 cm | 1 |
| Table basse | 1 |
| Tableau General | 1 |
| Volets | 4 |
Lien vers ce plan
Lien pour partager le plan Perenchies RDC meublé + elec2
Image du plan
Copier et coller le code ci dessous
Partagez ce plan
Vous aimez ce plan ?
Cliquez sur J'aime et gagnez des fonctionnalités