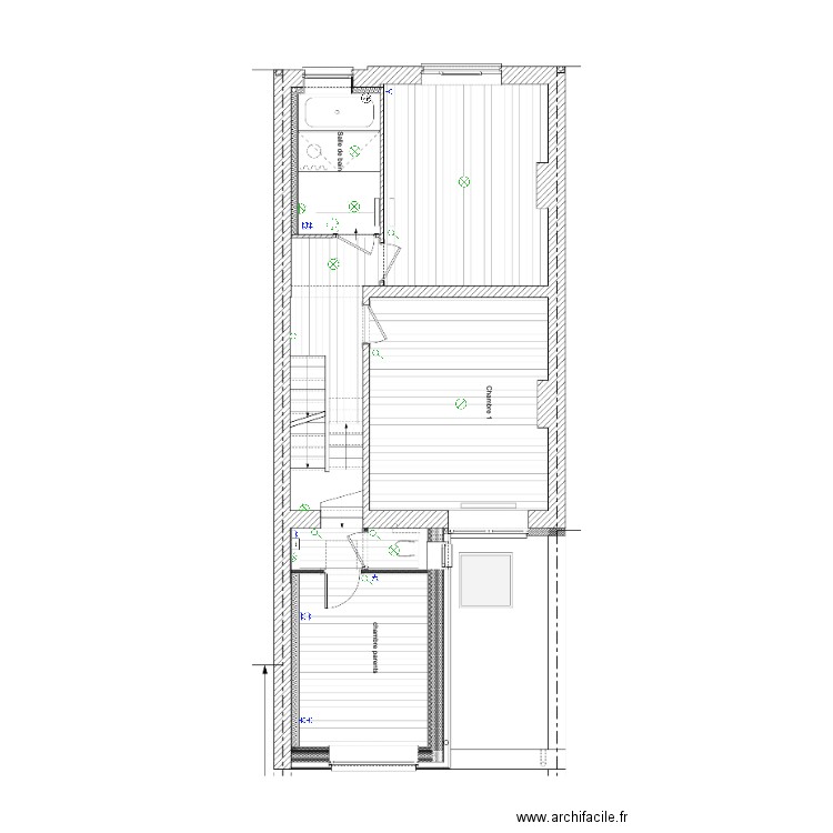
ballet 1er et entre sol
Plan de

Détails du plan
- Plan commencé le 30/10/2025 à 10:03 par claudiusgalius
- Modifié le 30/10/2025 à 10:08 par claudiusgalius
- Partage : Utilisation
Mots clés
Liste des pièces
Aucune pièce n'a été créé sur ce plan.
Liste des objets
| Nom de l'objet | Nombre |
|---|---|
| Texte | 3 |
| Eclairage applique | 3 |
| Eclairage plafond | 6 |
| Interrupteur | 5 |
| Interrupteur bipolaire | 3 |
| Interrupteur bouton poussoir | 1 |
| Prise | 10 |
| VMC bouche d'extraction | 1 |
| VMC caisson | 1 |
Lien vers ce plan
Lien pour partager le plan ballet 1er et entre sol
Image du plan
Copier et coller le code ci dessous
Partagez ce plan
Vous aimez ce plan ?
Cliquez sur J'aime et gagnez des fonctionnalités