CROZE ELEC
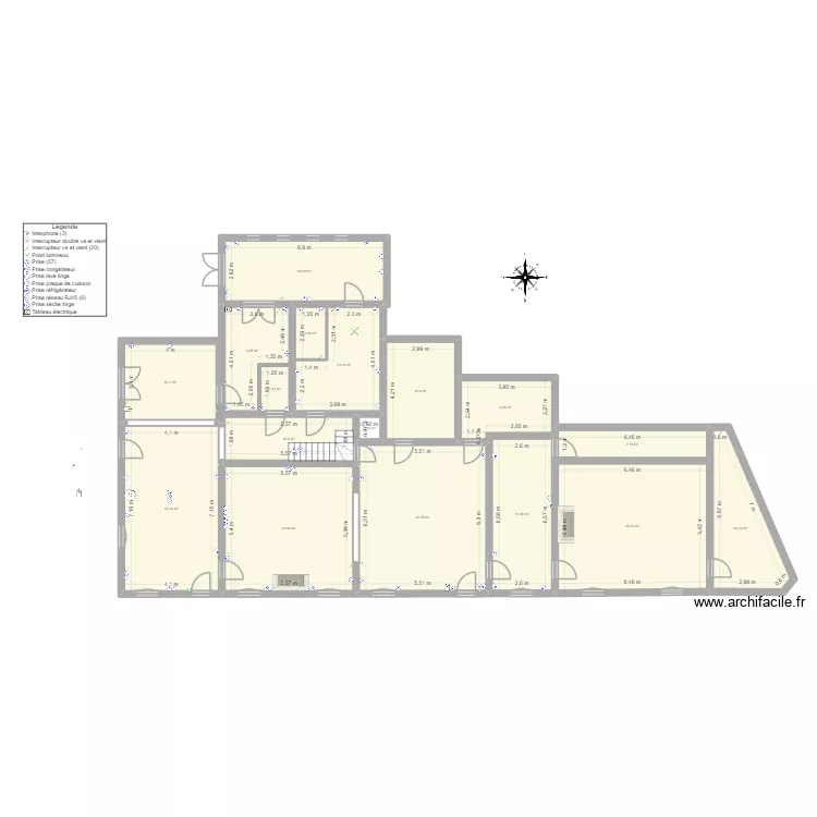
Plan de 17 et 262 m²

Détails du plan
- Plan commencé le 19/03/2026 à 15:14 par LopoldSIRI
- Modifié le 20/03/2026 à 16:28 par LopoldSIRI
- Partage : Utilisation
Mots clés
Liste des pièces
Liste des objets
| Nom de l'objet | Nombre |
|---|---|
| Légende | 1 |
| Boussole 3 | 1 |
| Cheminée en pierre | 2 |
| Escalier quart tournant | 1 |
| Interphone | 3 |
| Interrupteur double va et vient | 1 |
| Interrupteur va et vient | 20 |
| Poêle à bois rond | 1 |
| Point lumineux | 1 |
| Prise | 57 |
| Prise congélateur | 1 |
| Prise lave linge | 1 |
| Prise plaque de cuisson | 1 |
| Prise réfrigérateur | 1 |
| Prise réseau RJ45 | 6 |
| Prise sèche linge | 1 |
| Tableau électrique | 1 |
Lien vers ce plan
Lien pour partager le plan CROZE ELEC
Image du plan
Copier et coller le code ci dessous
Partagez ce plan
Vous aimez ce plan ?
Cliquez sur J'aime et gagnez des fonctionnalités
Plans de 17 pièces et de 250 à 270 m2
Voir tout les plans de 17 pièces et de 250 à 270 m2
Plans de 17 pièces
Voir tout les plans de 17 pièces
Plans de 250 à 270 m2
Voir tout les plans de 250 à 270 m2