agrandissement labo
Plan de 0 pièce et 0 m2.

Détails du plan
- Plan commencé le 17/11/2025 à 13:36 par MurielDambreville
- Modifié le 12/02/2026 à 14:23 par MurielDambreville
- Partage : Utilisation
Mots clés
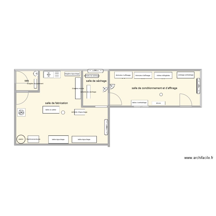
Liste des pièces
- sas
- salle de séchage
- salle de fabrication
- salle de conditionnement et d'affinage
Liste des objets
| Nom de l'objet | Nombre |
|---|---|
| Armoire | 4 |
| Borne ronde | 1 |
| Cercle | 2 |
| Climatiseur Split interieur | 3 |
| Etagère redimenssionnable | 10 |
| Evier 1 vasque | 1 |
| Évier 2 bacs | 1 |
| Lavabo | 1 |
| Lave main d'angle | 1 |
| Réfrigérateur | 1 |
| Table basse | 1 |
| Table basse | 1 |
Lien vers ce plan
Lien pour partager le plan agrandissement labo
Image du plan
Copier et coller le code ci dessous
Partagez ce plan
Vous aimez ce plan ?
Cliquez sur J'aime et gagnez des fonctionnalités
Plans de 0 pièce et de 40 à 50 m2
Voir tout les plans de 0 pièce et de 40 à 50 m2
Plans de 0 pièce
Voir tout les plans de 0 pièce
Plans de 40 à 50 m2
Voir tout les plans de 40 à 50 m2