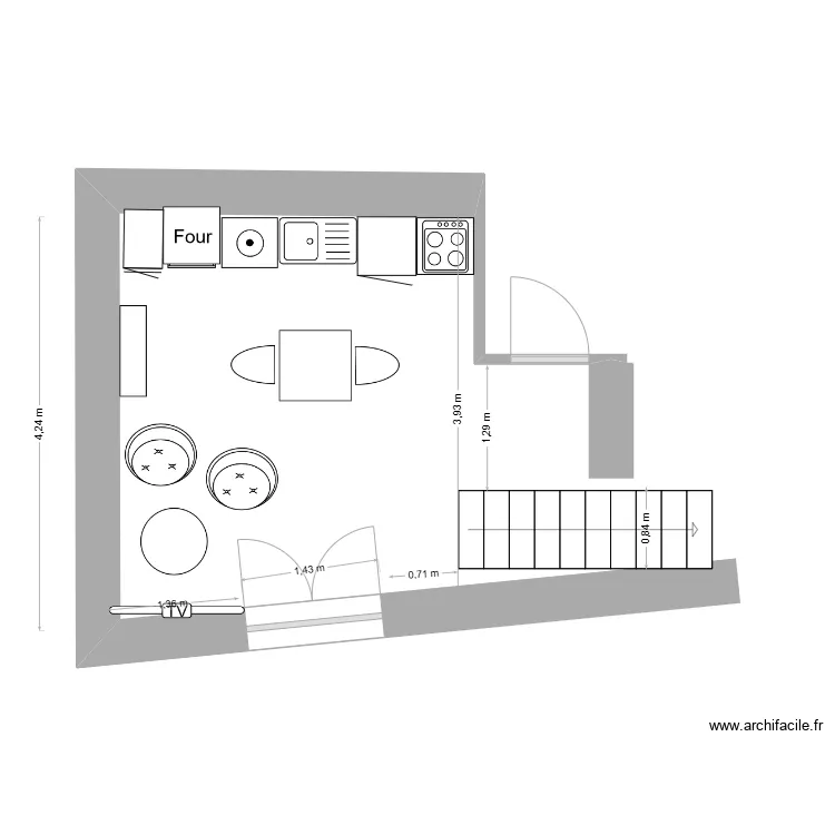
cuisine sejour appt 2 jet 2
Plan de

Détails du plan
- Plan commencé le 18/08/2025 à 18:52 par Mac54115
- Modifié le 18/08/2025 à 18:52 par Mac54115
- Partage : Utilisation
Mots clés
Liste des pièces
Aucune pièce n'a été créé sur ce plan.
Liste des objets
| Nom de l'objet | Nombre |
|---|---|
| Escalier droit | 1 |
| Etagère redimenssionnable | 1 |
| Évier 1 bac | 1 |
| Fauteuil crapaud | 2 |
| Four | 1 |
| Lave linge hublot | 1 |
| Meuble cuisine 1 porte | 1 |
| Meuble cuisine 1 porte et 1 tiroir | 1 |
| Plaque électrique avec meuble | 1 |
| Table 2 pers. 74 x 74 cm | 1 |
| Table basse | 1 |
| Téléviseur | 1 |
Lien vers ce plan
Lien pour partager le plan cuisine sejour appt 2 jet 2
Image du plan
Copier et coller le code ci dessous
Partagez ce plan
Vous aimez ce plan ?
Cliquez sur J'aime et gagnez des fonctionnalités