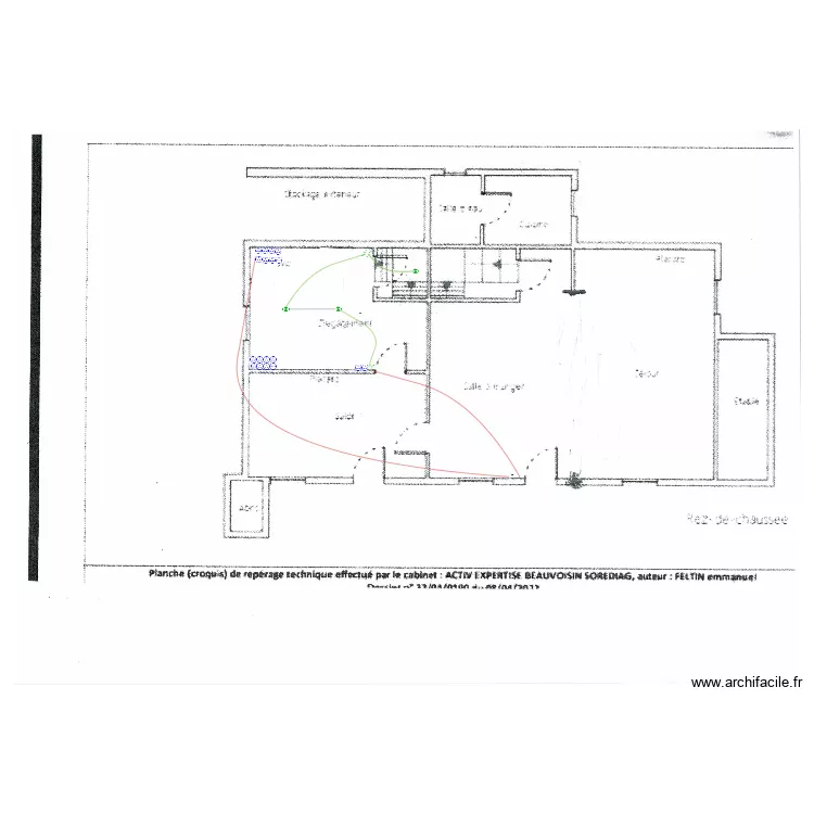
Plan elec salle RDC
Plan de

Détails du plan
- Plan commencé le 19/02/2024 à 16:24 par benoitLejeune
- Modifié le 19/02/2024 à 17:14 par benoitLejeune
- Partage : Utilisation
Mots clés
Liste des pièces
Aucune pièce n'a été créé sur ce plan.
Liste des objets
| Nom de l'objet | Nombre |
|---|---|
| Eclairage spot | 3 |
| Interrupteur va et vient | 3 |
| Prise | 16 |
| Prise réseau RJ45 | 2 |
| Tableau électrique Basse Tension | 1 |
Lien vers ce plan
Lien pour partager le plan Plan elec salle RDC
Image du plan
Copier et coller le code ci dessous
Partagez ce plan
Vous aimez ce plan ?
Cliquez sur J'aime et gagnez des fonctionnalités