Plan projet Studio cité
Plan de

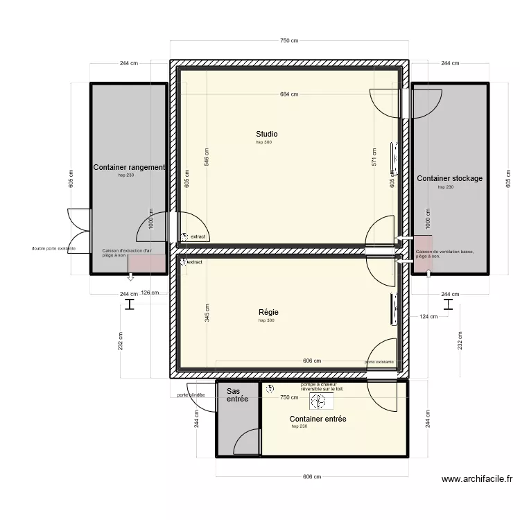
Description
Tout l’intérieur doit être isolé, une boite dans la boite, avec des carreaux de plâtre creux L.66 x l.50 x Ep.7 cm et de la laine de roche entre le mur et les carreaux de platre.
Prévoir aussi une isolation entre les container et les murs ainsi qu'une petite isolation thermique dans le container d'entrée.
La régie et le studio avec un plancher flottant.
Plutot qu'une simple VMC je suggere une extraction d'air et une ventilation basse. Le coffret de conduit de pieges à son pour la prise d'air exterieur pourrait se faire dans le container de stockage et traverser les murs de chaque piece. Le moteur d'extraction d'air et le piege à son pourrait être dans le container rangement.
Détails du plan
- Plan commencé le 14/03/2024 à 22:23 par vinchoukalagan
- Modifié le 26/04/2024 à 15:14 par vinchoukalagan
- Partage : Utilisation
Mots clés
Liste des pièces
Aucune pièce n'a été créé sur ce plan.
Liste des objets
| Nom de l'objet | Nombre |
|---|---|
| Texte | 19 |
| Climatiseur bloc exterieur | 1 |
| Climatiseur Split interieur | 2 |
| Flêche | 4 |
| labyrinth arrivée air | 2 |
| Pilonne ipn 30X30 | 2 |
| VMC bouche d'extraction | 3 |
Lien vers ce plan
Lien pour partager le plan Plan projet Studio cité
Image du plan
Copier et coller le code ci dessous
Partagez ce plan
Vous aimez ce plan ?
Cliquez sur J'aime et gagnez des fonctionnalités