RDC LE SAINT EN L ETAT
Plan de

Description
RDC
Détails du plan
- Plan commencé le 12/06/2024 à 16:59 par COUFFOULENS
- Modifié le 12/09/2025 à 16:41 par COUFFOULENS
- Partage : Modification
Mots clés
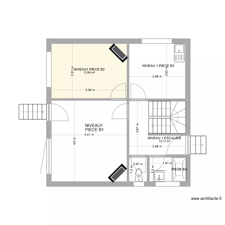
Liste des pièces
Aucune pièce n'a été créé sur ce plan.
Liste des objets
| Nom de l'objet | Nombre |
|---|---|
| Texte | 2 |
| Cheminée | 2 |
| Escalier demi tournant | 1 |
| Escalier droit | 2 |
| Évier 1 bac | 1 |
| Meuble 1 lavabo integré | 1 |
| WC standard | 1 |
Lien vers ce plan
Lien pour partager le plan RDC LE SAINT EN L ETAT
Image du plan
Copier et coller le code ci dessous
Partagez ce plan
Vous aimez ce plan ?
Cliquez sur J'aime et gagnez des fonctionnalités