
Gars
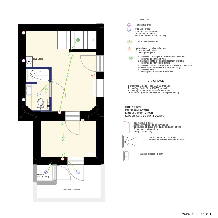
| Nom de l'objet | Nombre |
|---|---|
| Texte | 15 |
| Eclairage plafond | 7 |
| Escalier droit | 1 |
| Interrupteur | 4 |
| Interrupteur va et vient | 3 |
| Lave linge ouverture dessus | 1 |
| Meuble 1 lavabo integré | 2 |
| Prise | 10 |
| Radiateur à inertie 1500W | 4 |
| Receveur douche | 2 |
| VMC bouche d'extraction | 2 |
| WC standard | 1 |
Lien pour partager le plan 202511_Gars_RDC
Copier et coller le code ci dessous
Cliquez sur J'aime et gagnez des fonctionnalités
Voir tout les plans de 0 pièce et de 20 à 30 m2
Voir tout les plans de 0 pièce
Voir tout les plans de 20 à 30 m2