Chambre/Salon à droite/sans porte salon
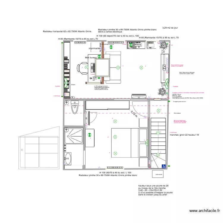
Plan de 2 et 37 m²

Détails du plan
- Plan commencé le 22/01/2026 à 19:19 par PierreGrenet
- Modifié le 23/01/2026 à 20:19 par PierreGrenet
- Partage : Utilisation
Mots clés
Liste des pièces
Liste des objets
Lien vers ce plan
Lien pour partager le plan Chambre/Salon à droite/sans porte salon
Image du plan
Copier et coller le code ci dessous
Partagez ce plan
Vous aimez ce plan ?
Cliquez sur J'aime et gagnez des fonctionnalités
Plans de 2 pièces et de 30 à 40 m2
Voir tout les plans de 2 pièces et de 30 à 40 m2
Plans de 2 pièces
Voir tout les plans de 2 pièces
Plans de 30 à 40 m2
Voir tout les plans de 30 à 40 m2