gaudel edf
Plan de

Détails du plan
- Plan commencé le 29/09/2025 à 19:02 par tintin68
- Modifié le 30/09/2025 à 08:41 par tintin68
- Partage : Utilisation
Mots clés
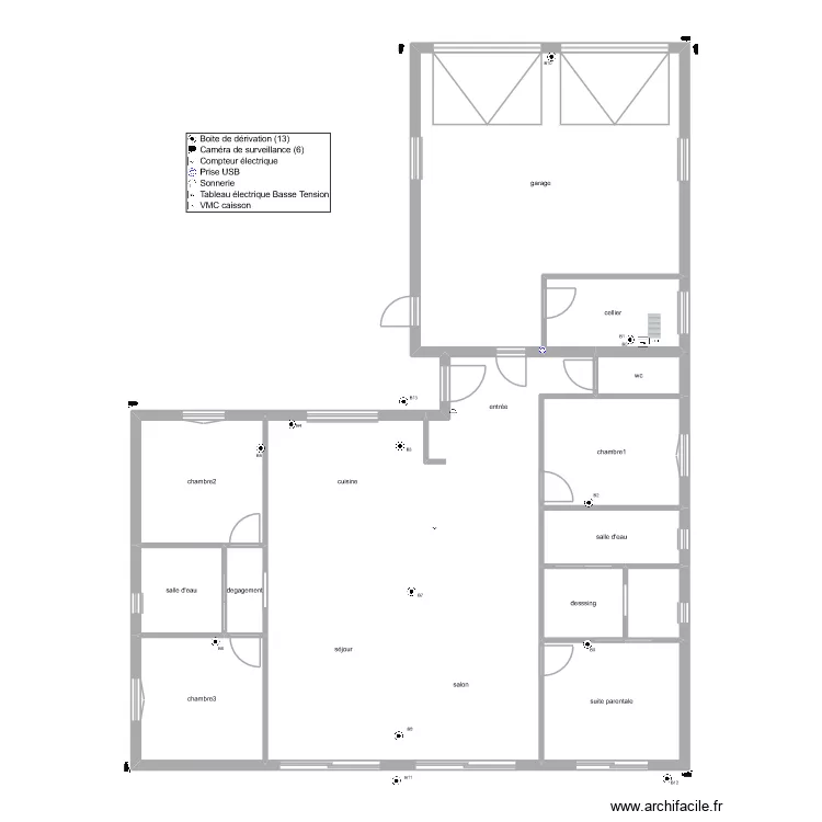
Liste des pièces
Aucune pièce n'a été créé sur ce plan.
Liste des objets
| Nom de l'objet | Nombre |
|---|---|
| Texte | 17 |
| Légende | 1 |
| Boite de dérivation | 13 |
| Caméra de surveillance | 6 |
| Compteur électrique | 1 |
| Prise USB | 1 |
| Sonnerie | 1 |
| Tableau 3x18 | 1 |
| Tableau électrique Basse Tension | 1 |
| VMC caisson | 1 |
Lien vers ce plan
Lien pour partager le plan gaudel edf
Image du plan
Copier et coller le code ci dessous
Partagez ce plan
Vous aimez ce plan ?
Cliquez sur J'aime et gagnez des fonctionnalités