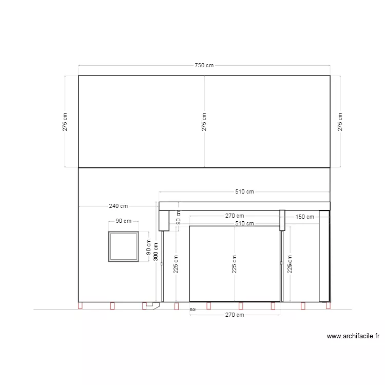
Vue coupe façade arriere WWM02.25 16.01.25
Plan de

Description
Vue coupe Façade arriere 14.01.25
Détails du plan
- Plan commencé le 20/01/2025 à 11:02 par wood wall concept
- Modifié le 20/01/2025 à 11:02 par wood wall concept
- Partage : Utilisation
Mots clés
Liste des pièces
Aucune pièce n'a été créé sur ce plan.
Liste des objets
| Nom de l'objet | Nombre |
|---|---|
| Escalier droit 1 en coupe | 1 |
| Façade | 8 |
| Fenêtre 1 vantail | 1 |
| Rectangle | 14 |
Lien vers ce plan
Lien pour partager le plan Vue coupe façade arriere WWM02.25 16.01.25
Image du plan
Copier et coller le code ci dessous
Partagez ce plan
Vous aimez ce plan ?
Cliquez sur J'aime et gagnez des fonctionnalités