étage chambre d\'hote plomberie
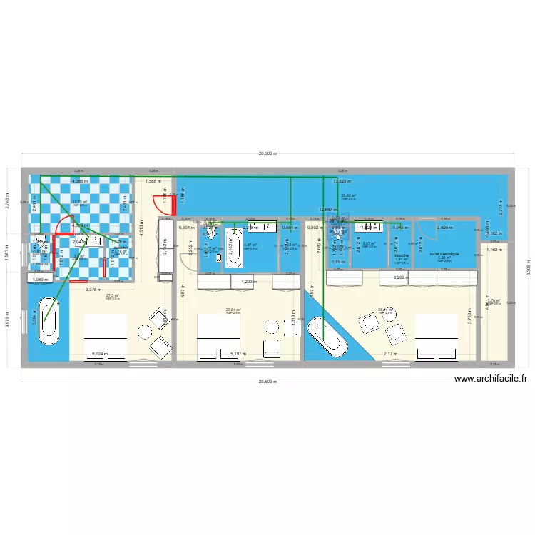
Plan de 18 et 148 m²

Détails du plan
- Plan commencé le 15/02/2026 à 17:38 par ROMAINberry
- Modifié le 15/02/2026 à 21:33 par ROMAINberry
- Partage : Utilisation
Mots clés
Liste des pièces
- douche
- local thecnique
- douche
Liste des objets
| Nom de l'objet | Nombre |
|---|---|
| Baignoire îlot ovale | 2 |
| Baignoire rectangulaire (encastrable) | 1 |
| Lave main | 1 |
| Lit King Size | 3 |
| Meuble 2 lavabos | 3 |
| Meuble cuisine 1 tiroir 2 portes | 11 |
| Rectangle | 2 |
| Table 2 pers + fauteuils | 3 |
| Triangle rectangle | 1 |
| WC suspendu | 3 |
Lien vers ce plan
Lien pour partager le plan étage chambre d\'hote plomberie
Image du plan
Copier et coller le code ci dessous
Partagez ce plan
Vous aimez ce plan ?
Cliquez sur J'aime et gagnez des fonctionnalités
Plans de 18 pièces et de 140 à 160 m2
Voir tout les plans de 18 pièces et de 140 à 160 m2
Plans de 18 pièces
Voir tout les plans de 18 pièces
Plans de 140 à 160 m2
Voir tout les plans de 140 à 160 m2