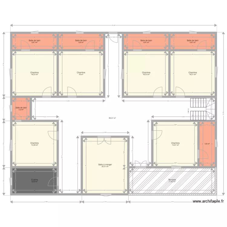
Plan de fondation d\'une maison T8
Plan de 16 pièces et 243 m²

Description
Plan de construction d'une maison individuelle
Détails du plan
- Plan commencé le 17/01/2026 à 19:41 par ABDOUJOOF
- Modifié le 25/02/2026 à 21:25 par ABDOUJOOF
- Partage : Utilisation
Mots clés
Liste des pièces
- Chambre
- Salle de bain
- Salle de bain
- Chambre
- Chambre
- Salle de bain
- Salle de bain
- Chambre
- Salle de bain
- Chambre
- Chambre
- Cuisine
- Terrasse
- Salle à manger
Liste des objets
| Nom de l'objet | Nombre |
|---|---|
| Texte | 1 |
| Escalier demi tournant | 1 |
Lien vers ce plan
Lien pour partager le plan Plan de fondation d\'une maison T8
Image du plan
Copier et coller le code ci dessous
Partagez ce plan
Vous aimez ce plan ?
Cliquez sur J'aime et gagnez des fonctionnalités
Plans de 16 pièces et de 230 à 250 m2
Voir tout les plans de 16 pièces et de 230 à 250 m2
Plans de 16 pièces
Voir tout les plans de 16 pièces
Plans de 230 à 250 m2
Voir tout les plans de 230 à 250 m2