position Eau Assainissement
Plan de

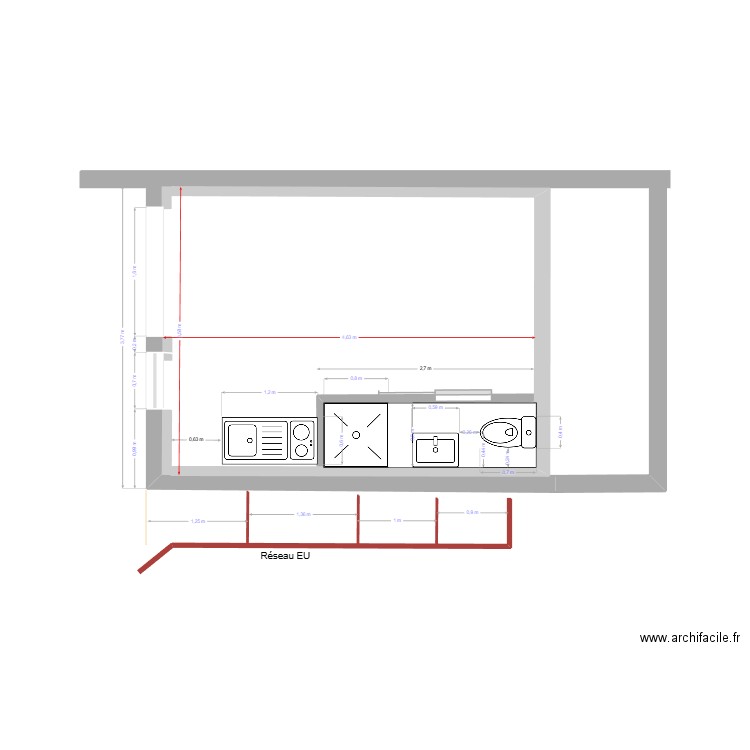
Détails du plan
- Plan commencé le 10/11/2025 à 19:37 par dauloue
- Modifié le 19/11/2025 à 18:03 par dauloue
- Partage : Utilisation
Mots clés
Liste des pièces
Aucune pièce n'a été créé sur ce plan.
Liste des objets
| Nom de l'objet | Nombre |
|---|---|
| Texte | 1 |
| Cartouche 1 | 1 |
| Kitchenette électrique | 1 |
| Meuble 1 lavabo integré | 1 |
| Receveur douche extra plat | 1 |
| Rectangle | 1 |
| WC standard | 1 |
Lien vers ce plan
Lien pour partager le plan position Eau Assainissement
Image du plan
Copier et coller le code ci dessous
Partagez ce plan
Vous aimez ce plan ?
Cliquez sur J'aime et gagnez des fonctionnalités