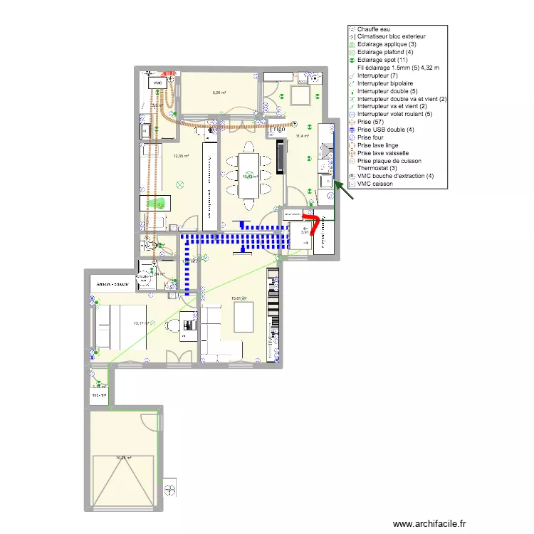
DAN BUGA - PROJET MAISON PUBLIC - PLAN PROJET VB
Plan de

Description
PLAN PROJET CVC
Détails du plan
- Plan commencé le 10/09/2025 à 19:13 par GROUPE BSV
- Modifié le 08/11/2025 à 09:19 par GROUPE BSV
- Partage : Lecture
Mots clés
Liste des pièces
Aucune pièce n'a été créé sur ce plan.
Liste des objets
Lien vers ce plan
Lien pour partager le plan DAN BUGA - PROJET MAISON PUBLIC - PLAN PROJET VB
Image du plan
Copier et coller le code ci dessous
Partagez ce plan
Vous aimez ce plan ?
Cliquez sur J'aime et gagnez des fonctionnalités