rez de chausse éclairage _lampes_Adri
Plan de

Description
Rez de chaussée éclairage _ + modifications Adri
liens vers achat lampe escalier
notes sur les hauteurs d'appliques
Détails du plan
- Plan commencé le 11/02/2025 à 16:59 par mairaux11
- Modifié le 11/02/2025 à 17:41 par mairaux11
- Partage : Utilisation
Mots clés
Liste des pièces
Aucune pièce n'a été créé sur ce plan.
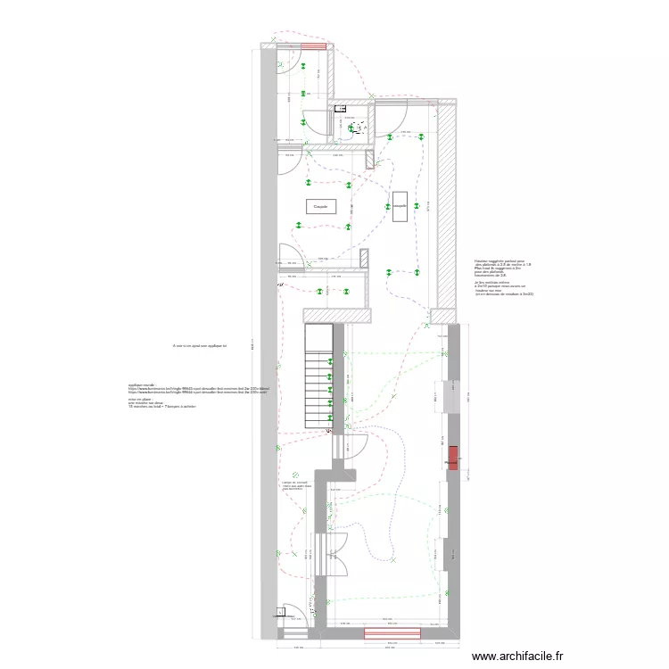
Liste des objets
| Nom de l'objet | Nombre |
|---|---|
| Texte | 6 |
| Armoire | 1 |
| Compteur électrique | 1 |
| Détecteur de mouvement | 3 |
| Eclairage applique | 12 |
| Eclairage plafond | 1 |
| Eclairage spot | 21 |
| Escalier droit | 1 |
| Interrupteur | 2 |
| Interrupteur double va et vient | 7 |
| Interrupteur va et vient | 5 |
| Lave main | 1 |
| Point lumineux | 5 |
| Rectangle | 3 |
| WC standard | 1 |
Lien vers ce plan
Lien pour partager le plan rez de chausse éclairage _lampes_Adri
Image du plan
Copier et coller le code ci dessous
Partagez ce plan
Vous aimez ce plan ?
Cliquez sur J'aime et gagnez des fonctionnalités