Appartement N°2-31/12/23
Plan de

Détails du plan
- Plan commencé le 31/12/2023 à 13:23 par Benzemane
- Modifié le 31/12/2023 à 14:20 par Benzemane
- Partage : Utilisation
Mots clés
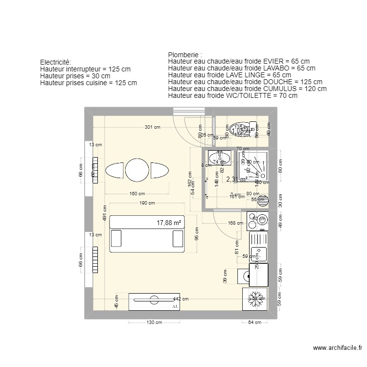
Liste des pièces
Aucune pièce n'a été créé sur ce plan.
Liste des objets
Lien vers ce plan
Lien pour partager le plan Appartement N°2-31/12/23
Image du plan
Copier et coller le code ci dessous
Partagez ce plan
Vous aimez ce plan ?
Cliquez sur J'aime et gagnez des fonctionnalités