CP - P3 -Plan
Plan de

Détails du plan
- Plan commencé le 06/11/2023 à 13:56 par jacquesmauricegaillard
- Modifié le 07/11/2023 à 11:51 par jacquesmauricegaillard
- Partage : Utilisation
Mots clés
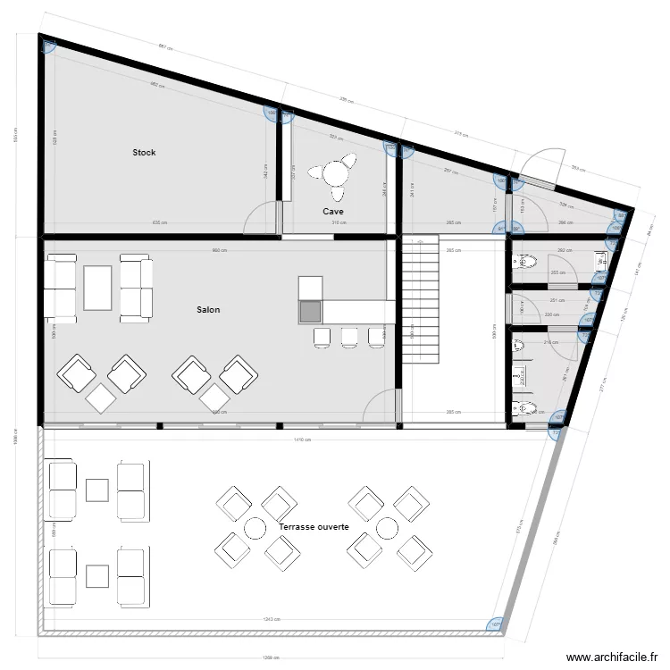
Liste des pièces
Aucune pièce n'a été créé sur ce plan.
Liste des objets
| Nom de l'objet | Nombre |
|---|---|
| Texte | 5 |
| Bar | 9 |
| Canapé 2 places | 4 |
| Canapé 2 places | 6 |
| Chaise | 3 |
| Chaise haute bar | 4 |
| Escalier droit | 2 |
| Flêche | 1 |
| Meuble 1 lavabo integré | 4 |
| Parasol carré | 4 |
| Séparation urinoir | 1 |
| Table 3 pers. 80 x 80 cm | 1 |
| Table basse | 8 |
| Table carre+ 4 fauteuils | 4 |
| Table ronde + 4 fauteuils | 2 |
| Urinoir | 2 |
| WC standard | 4 |
Lien vers ce plan
Lien pour partager le plan CP - P3 -Plan
Image du plan
Copier et coller le code ci dessous
Partagez ce plan
Vous aimez ce plan ?
Cliquez sur J'aime et gagnez des fonctionnalités