EIFFAGE CHANTIER RILLIEUX LA PAPE
Plan de

Détails du plan
- Plan commencé le 26/06/2025 à 11:56 par aca69780
- Modifié le 30/06/2025 à 11:20 par aca69780
- Partage : Utilisation
Mots clés
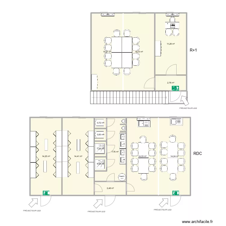
Liste des pièces
Aucune pièce n'a été créé sur ce plan.
Liste des objets
| Nom de l'objet | Nombre |
|---|---|
| Texte | 6 |
| Armoire portes battantes | 2 |
| Armoire portes pliantes | 12 |
| Bureau 100 X 50 cm | 1 |
| Chaise | 34 |
| Chauffe eau | 1 |
| Climatiseur Split interieur | 3 |
| Escalier droit | 1 |
| Etagère redimenssionnable | 4 |
| Évier 1 bac avec meuble | 2 |
| Flêche | 4 |
| Issue et sortie de secours | 1 |
| Issue et sortie de secours | 2 |
| Meuble 2 lavabos | 2 |
| Receveur douche | 2 |
| Table à langer | 2 |
| Table de bureau | 8 |
| Urinoir | 2 |
Lien vers ce plan
Lien pour partager le plan EIFFAGE CHANTIER RILLIEUX LA PAPE
Image du plan
Copier et coller le code ci dessous
Partagez ce plan
Vous aimez ce plan ?
Cliquez sur J'aime et gagnez des fonctionnalités