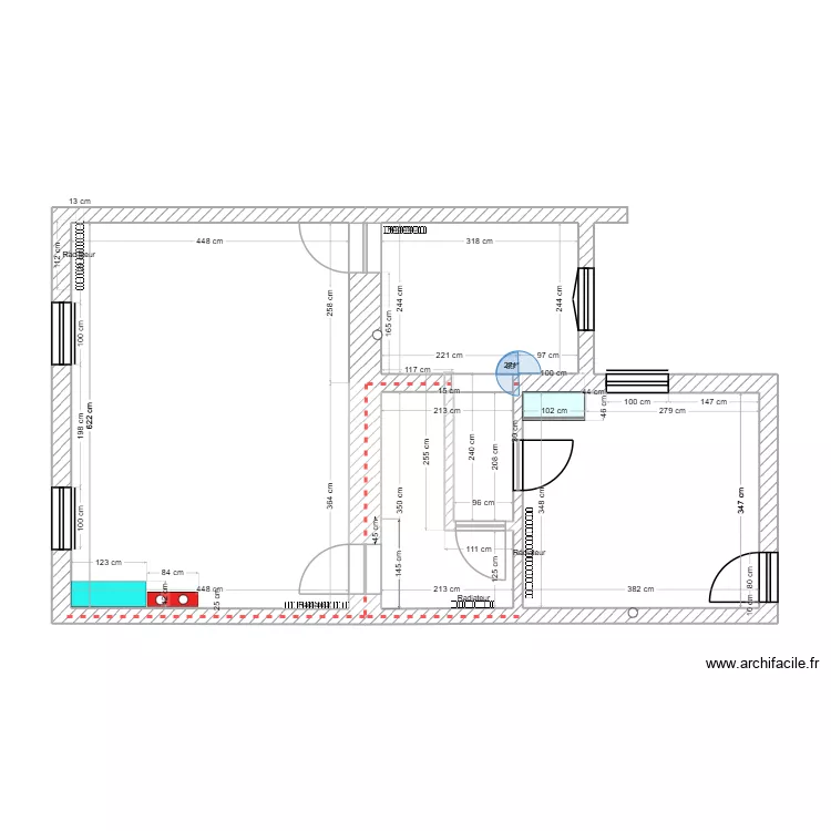
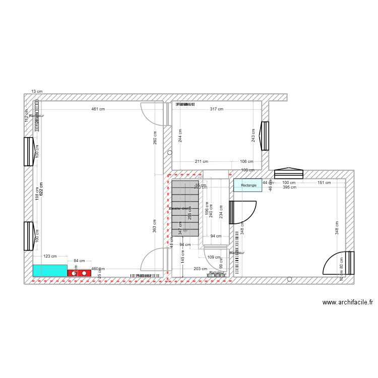
PLAN DE MASSE V2 09 10 2025
Plan de

Description
ADJONCTION DE LA CHAMBRE
MODIFICATION DES FENETRES 11 10 2025
MODIFICATIONS ESCALIER 16 10 2025
Détails du plan
- Plan commencé le 09/10/2025 à 22:24 par MNM42
- Modifié le 19/10/2025 à 18:47 par MNM42
- Partage : Utilisation
Mots clés
Liste des pièces
Aucune pièce n'a été créé sur ce plan.
Liste des objets
| Nom de l'objet | Nombre |
|---|---|
| Cercle | 4 |
| Radiateur en fonte 2350 W ( 110 W / élément ) | 5 |
| Rectangle | 1 |
Lien vers ce plan
Lien pour partager le plan PLAN DE MASSE V2 09 10 2025
Image du plan
Copier et coller le code ci dessous
Partagez ce plan
Vous aimez ce plan ?
Cliquez sur J'aime et gagnez des fonctionnalités