création maison etage
Plan de

Description
maison rdc
Détails du plan
- Plan commencé le 19/09/2025 à 22:16 par Sylvie Guicherd
- Modifié le 28/10/2025 à 17:11 par Sylvie Guicherd
- Partage : Lecture
Mots clés
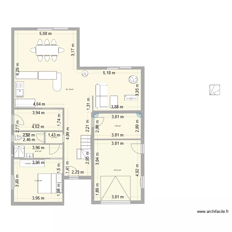
Liste des pièces
Aucune pièce n'a été créé sur ce plan.
Liste des objets
| Nom de l'objet | Nombre |
|---|---|
| Armoire - penderie 200 cm | 1 |
| Bar | 3 |
| Canapé 3 places | 1 |
| Escalier quart tournant | 2 |
| Évier 1 bac | 1 |
| Fauteuil crapaud | 1 |
| Lave main | 1 |
| Lit queen size | 1 |
| Meuble 1 lavabo integré | 1 |
| Plan de travail bout arrondi | 1 |
| Poêle à bois rond | 1 |
| Receveur douche | 1 |
| Table 6 - 8 pers 180 x 80 cm | 1 |
| Table basse | 1 |
| Téléviseur avec meuble | 1 |
| WC suspendu | 1 |
Lien vers ce plan
Lien pour partager le plan création maison etage
Image du plan
Copier et coller le code ci dessous
Partagez ce plan
Vous aimez ce plan ?
Cliquez sur J'aime et gagnez des fonctionnalités