KERBOUA
Plan de 0 pièce et 0 m2.

Détails du plan
- Plan commencé le 23/10/2025 à 16:47 par JamelPMR
- Modifié le 23/10/2025 à 16:47 par JamelPMR
- Partage : Utilisation
Mots clés
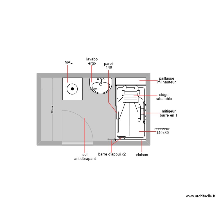
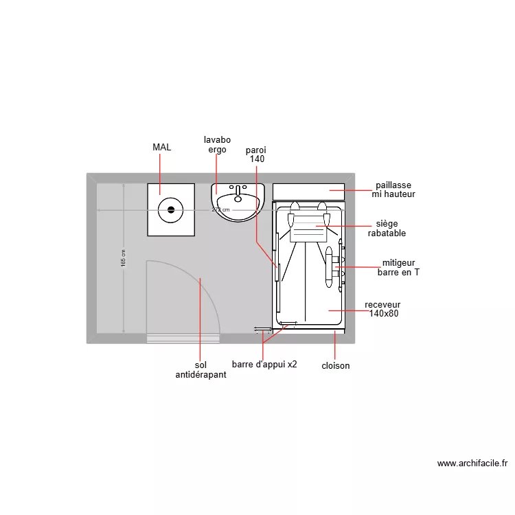
Liste des pièces
Aucune pièce n'a été créé sur ce plan.
Liste des objets
| Nom de l'objet | Nombre |
|---|---|
| Texte | 10 |
| banc | 1 |
| Lavabo | 1 |
| Lave linge hublot | 1 |
| paillasse / banc | 2 |
| paroi | 3 |
| Receveur douche | 1 |
| robinet mitigeur | 1 |
| Sèche-serviettes électrique à inertie 1000 W | 3 |
Lien vers ce plan
Lien pour partager le plan KERBOUA
Image du plan
Copier et coller le code ci dessous
Partagez ce plan
Vous aimez ce plan ?
Cliquez sur J'aime et gagnez des fonctionnalités