ARCHI A10 2 juil ter2
Plan de 0 pièce et 0 m2.

Détails du plan
- Plan commencé le 15/10/2025 à 18:52 par betzol
- Modifié le 10/02/2026 à 14:56 par betzol
- Partage : Lecture
Mots clés
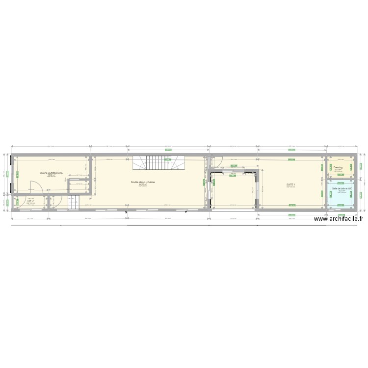
Liste des pièces
- Dressing
- Salle de bain et WC
- Couloir
- Suite
- Patio
- Double séjour + Cuisine
- Entrée
- WC
- Salle de bain et WC
- Salle de bain et WC
- Chambre
- Salle de bain et WC
- Couloir
- Salle de bain et WC
- Salle de bain et WC
- Chambre
- Salle de bain et WC
- Couloir
Liste des objets
| Nom de l'objet | Nombre |
|---|---|
| Caméra de surveillance | 6 |
| Escalier demi tournant | 3 |
| Escalier droit | 6 |
| Sèche-serviettes électrique à inertie 1000 W | 3 |
Lien vers ce plan
Lien pour partager le plan ARCHI A10 2 juil ter2
Image du plan
Copier et coller le code ci dessous
Partagez ce plan
Vous aimez ce plan ?
Cliquez sur J'aime et gagnez des fonctionnalités
Plans de 0 pièce
Voir tout les plans de 0 pièce
Plans de 310 à 330 m2
Voir tout les plans de 310 à 330 m2